Chain-free, single-storey living with garage, conservatory and ample parking.
Three double bedrooms with two bathrooms for family convenience
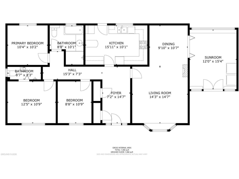
This spacious three-bedroom detached bungalow sits on a decent plot in Llansamlet and offers single-storey living with flexible space for a family. The layout includes two bathrooms, a bright conservatory and a detached garage, plus parking for up to four cars — practical for day-to-day life and visitors. Solid wood floors and a modern-traditional kitchen give the home immediate appeal, while the overall size (about 1,368 sq ft) provides room to adapt.
The property is chain-free and offered freehold, making it straightforward to move to. It has an EPC rating of C and standard ceiling heights typical of a 1980s build. Located close to the M4, Llansamlet provides good commuting links while local shops, schools and parks are within reach. Note the wider area mixes residential and industrial uses.
Important purchasing information: the sale is via the Modern Method of Auction. Buyers must complete within 56 days, pay a non-refundable reservation fee of 4.5% of the purchase price (minimum £6,600 incl. VAT), and expect an AML check fee of £30 per buyer. Consider mortgage readiness and factor these auction costs into any offer.
There is scope to personalise and update parts of the property to increase value and better reflect a buyer’s taste. The home is well suited to families or downsizers wanting single-level accommodation with substantial floor area, but purchasers should assess the house in person and budget for any desired improvements.
3 bedroom detached bungalow for sale in Gwlad-Y-Gan, Morriston, Swansea, SA6 — £130,000 • 3 bed • 1 bath • 766 ft²
3 bedroom detached bungalow for sale in Heol Dal Y Coppa, Llansamlet, Swansea, SA7 — £220,000 • 3 bed • 1 bath • 734 ft²
3 bedroom detached bungalow for sale in , Frederick Place, Llansamlet, Swansea., SA7 — £240,000 • 3 bed • 1 bath
5 bedroom detached bungalow for sale in Bethel Road, Llansamlet, Swansea, SA7 9QP, SA7 — £475,000 • 5 bed • 3 bath • 2094 ft²
3 bedroom detached bungalow for sale in Ffordd Abiah, Clydach, Swansea, SA6 5LD, SA6 — £255,000 • 3 bed • 2 bath • 937 ft²
2 bedroom semi-detached bungalow for sale in Heol Miaren, Morriston, Swansea, SA6 6EL, SA6 — £180,000 • 2 bed • 1 bath • 621 ft²


















































































































