Characterful three‑bed near town centre with private west patio.
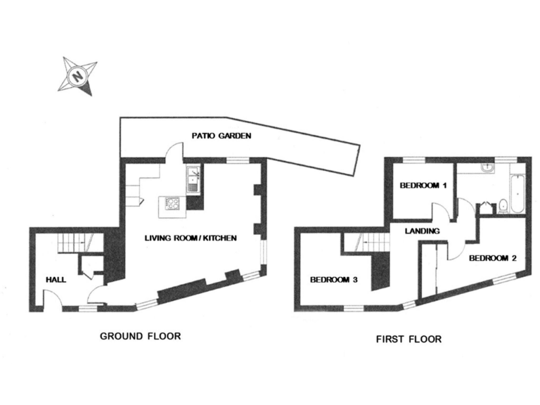
Open‑plan living room and modern kitchen area
Three bedrooms; one bathroom (single bathroom for household)
West‑facing full‑width patio — private but very small
Recently refurbished; good period features preserved
Mains gas central heating; double glazing fitted (install date unknown)
EPC D (55) — energy improvements may be beneficial
Low ceilings and generally small rooms — historic cottage proportions
Located 200 yards from town centre; local area shows deprivation
Comfort and character meet practical location in this three‑bed Elizabethan stone cottage on Church Street, just 200 yards from Rhayader’s town centre. The open‑plan living room and kitchen create a sociable ground floor, while exposed beams and period stonework retain authentic charm. A west‑facing, full‑width patio gives a sunny, private outdoor spot without lawn maintenance.
The property has been recently refurbished and benefits from mains gas central heating and double glazing, making it ready to occupy with only cosmetic updates needed for personal taste. Rooms are generally small to average with low ceilings typical of historic cottages, so the house suits buyers seeking character and efficiency rather than expansive living spaces. There is one bathroom serving three bedrooms.
Practical points are clear: the EPC rating is D and the plot is very small — the garden is a patio rather than a lawn — so energy improvements or external works could be considered. Broadband speeds are average and the local area scores high for ageing population and relative deprivation, though the town offers strong local services, leisure facilities and tourist trade due to nearby Elan Valley.
Overall this freehold cottage will appeal to first‑time buyers or downsizers who prioritise a central, characterful home within walking distance of shops, pubs and recreation. It offers immediate habitation with scope for modest improvements to increase comfort and efficiency.
3 bedroom semi-detached house for sale in Triangle Cwmdauddwr, LD6 — £275,000 • 3 bed • 2 bath • 1109 ft²
2 bedroom end of terrace house for sale in Church Street, Rhayader, Powys, LD6 — £199,950 • 2 bed • 1 bath • 705 ft²
3 bedroom end of terrace house for sale in Church Street, Rhayader, Powys, LD6 — £155,000 • 3 bed • 1 bath • 990 ft²
3 bedroom semi-detached house for sale in Sunnyfield, Rhayader, LD6 — £185,000 • 3 bed • 1 bath • 1034 ft²
3 bedroom semi-detached house for sale in East Street, Rhayader, Powys, LD6 — £300,000 • 3 bed • 3 bath • 1314 ft²
3 bedroom terraced house for sale in Maes Y Deri, Rhayader, LD6 — £169,960 • 3 bed • 1 bath • 867 ft²














































































