Bright, low-maintenance home with a Lifetime Lease option for over-60s.
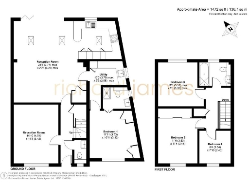
- Modern 4-bed detached home with open-plan kitchen and skylights
- Ground-floor master bedroom with ensuite and built-in storage
- Large driveway providing ample off-street parking
- Low-maintenance garden with direct access from reception
- Lifetime Lease option for over-60s; example price £284,750
- Full market price £425,000; Lifetime share up to 50%
- Tenure unknown — solicitor must verify legal details
- Chain free and located in a very affluent, well-served suburb
A modern four-bedroom detached house on Hadleigh Rise offering bright, spacious living across two storeys. The property’s open-plan kitchen/reception with skylights and bifold doors delivers abundant natural light and easy garden access for low-maintenance outdoor time. The ground-floor master with ensuite and built-in storage adds single-floor convenience.
This home is being marketed with a Home for Life Lifetime Lease option for buyers aged 60+, which can substantially reduce the purchase outlay. As an example, the Lifetime Lease guide price for this property is £284,750 (typical saving ~33%); the full market price is £425,000. The Lifetime Lease allows purchase of up to a 50% share and the exact price depends on age and personal circumstances.
Practical positives include a large driveway for off-street parking, a decent plot with a low-maintenance garden, fast broadband and excellent mobile signal. The area is very affluent with good local schools, shops and transport links, and the house is offered chain free.
Important factual notes: tenure details are unknown and must be confirmed with your solicitor. The Lifetime Lease is available only to those aged 60 or over and the price you pay will vary. Interested buyers should verify fixtures, fittings, any extensions and legal status before committing.
4 bedroom detached house for sale in Retingham Way, Kingsdown, Swindon, SN3 — £335,000 • 4 bed • 2 bath • 1320 ft²
4 bedroom detached house for sale in Griffiths Close, Stratton St Margaret, Swindon, SN3 — £318,250 • 4 bed • 2 bath • 1304 ft²
4 bedroom detached house for sale in Nythe Road, Nythe, Swindon, SN3 — £311,500 • 4 bed • 3 bath • 1459 ft²
4 bedroom detached house for sale in Watermead, Swindon, SN3 — £398,750 • 4 bed • 3 bath • 1460 ft²
5 bedroom detached house for sale in St Philips Road, Stratton St Margaret, Swindon, SN2 — £462,250 • 5 bed • 4 bath • 2443 ft²
4 bedroom end of terrace house for sale in Mayflower Road, Covingham, Swindon, SN3 — £268,000 • 4 bed • 3 bath • 1231 ft²


























































































































