- **Standout Features:**
- Grade II listed terraced property in a prime High Street location
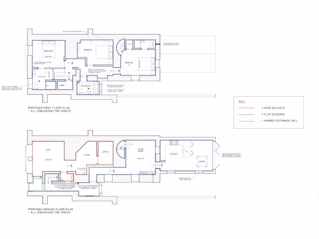
- Expired planning permission for a substantial three-bedroom residential home
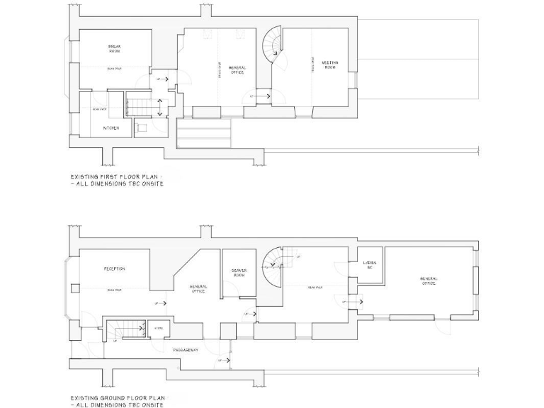
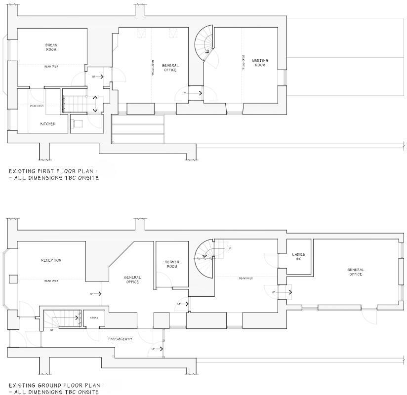
- Currently operates as a commercial space (Class E)
- Retains original architectural features with modern rustic interior charm
- Includes a small garden area
- **Potential Concerns:**
- Renovation and development may pose challenges due to listed status
- Expired planning permission requires re-application for residential conversion
This impressive Grade II listed terraced house in Cricklade presents an exceptional opportunity for investment or a unique hybrid living space. Boasting ample square footage across two floors (1,822 sq ft), this property combines classic charm with modern rustic design elements, making it ideal for both families and professionals. With its prominent High Street location, enjoy the convenience of nearby amenities including schools, shops, and recreational areas, ensuring a vibrant community lifestyle.
The property offers the potential to convert the existing commercial space into a spacious three-bedroom home, complete with a garden—ideal for families or those looking to add personal value in a desirable countryside town. However, buyers should note the challenges posed by the Grade II listed status in terms of future renovations. This versatile property, nestled in a low-crime, affluent area, will appeal to those seeking a blend of residential comfort and commercial potential. Act quickly—properties like this, rich in character and opportunities, don’t stay on the market for long.
3 bedroom end of terrace house for sale in High Street, Cricklade, SN6 — £440,000 • 3 bed • 1 bath • 1001 ft²
2 bedroom terraced house for sale in Calcutt Street, Cricklade, Wiltshire, SN6 — £220,000 • 2 bed • 1 bath • 516 ft²
High street retail property for sale in Castle Street, Cirencester, Gloucestershire, GL7 — £450,000 • 1 bed • 1 bath • 3850 ft²
3 bedroom semi-detached house for sale in High Street, Purton, SN5 — £375,000 • 3 bed • 2 bath • 990 ft²
Office for sale in Gosditch Street, Cirencester, Gloucestershire, GL7 — £450,000 • 1 bed • 1 bath • 3423 ft²
Commercial property for sale in High Street, Highworth, Swindon, SN6 — £250,000 • 1 bed • 1 bath • 561 ft²






























































