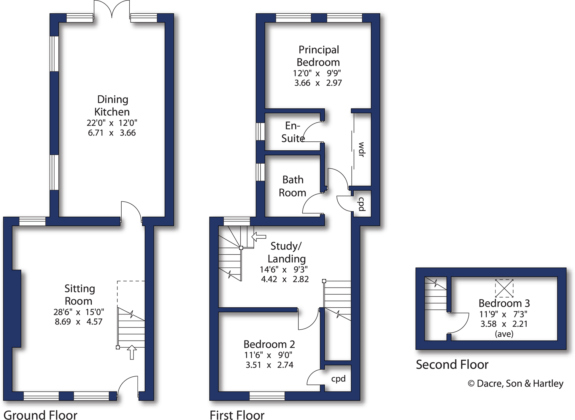
**Standout Features:**
- **Three Bedrooms & Two Bathrooms:** Spacious for families or guests.
- **Charming Sitting Room:** Features wood-burning stove for a cozy atmosphere.
- **Large Dining Kitchen:** Modern amenities with granite surfaces, electric range oven, and integrated appliances.
- **Private Rear Garden:** Ideal for entertaining, with terrace and scenic views.
- **Garage & Off-Street Parking:** Added convenience in a sought-after village.
This delightful terraced cottage combines traditional charm with modern living in the highly desirable village of Kirk Hammerton. Boasting three generously sized bedrooms and two well-appointed bathrooms, this home is perfect for families or those seeking extra space. The warm sitting room, adorned with a wood-burning stove, invites relaxation, while the expansive dining kitchen is a chef's dream, featuring contemporary fittings and direct access to the enchanting private rear garden, perfect for gatherings or peaceful moments outdoors.
Located in a tranquil setting with excellent local amenities and convenient access to the A1M for commuting, this property is a rare find. However, potential buyers should note there is no mains gas and heating is through an air source heat pump. Flood risk is moderate for surface water, which is an important consideration for future planning. This property offers not just a home, but a lifestyle—character-filled, family-friendly, and positioned in an affluent area. Don’t miss your chance to secure this gem in a sought-after village; properties like this are rarely available for long!
5 bedroom detached house for sale in Crooked Lane, Kirk Hammerton, York, North Yorkshire, YO26 — £925,000 • 5 bed • 3 bath • 2655 ft²
3 bedroom detached house for sale in Bernard Lane, Green Hammerton, YO26 — £525,000 • 3 bed • 1 bath • 1329 ft²
2 bedroom semi-detached house for sale in Boroughbridge Road, Green Hammerton, York, North Yorkshire, YO26 — £350,000 • 2 bed • 1 bath • 790 ft²
3 bedroom terraced house for sale in Kirkby Wharfe, Tadcaster, LS24 — £300,000 • 3 bed • 2 bath • 1173 ft²
3 bedroom semi-detached house for sale in St. Thomas's Way, Green Hammerton, York, North Yorkshire, YO26 — £350,000 • 3 bed • 2 bath • 1035 ft²
4 bedroom detached house for sale in Crooked Lane, Kirk Hammerton, York, North Yorkshire, YO26 — £650,000 • 4 bed • 2 bath • 1190 ft²


























































































