HP5 2QL - 2 bed chesham groundfloor home in Darvell Drive, HP5 2QL

View on Property Piper

2 bedroom maisonette for sale in Chesham, Buckinghamshire, HP5

Summary - 19 DARVELL DRIVE CHESHAM HP5 2QL

2 bed 1 bath Maisonette

Chain-free starter with garage and gardens near countryside walks.
Newly renovated two-bedroom ground-floor maisonette, ready to move in.
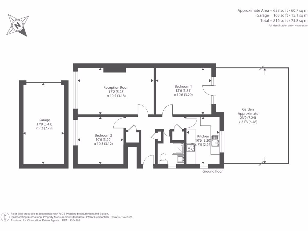
This ground-floor two-bedroom maisonette offers a neat, newly renovated home in a quiet Chesham suburb. The layout is traditional and practical, with a lounge/dining room, fitted kitchen and modern bathroom — all presented ready to move into. A private garage in a nearby block and front and rear gardens add useful outdoor and storage space.

The property is leasehold with 126 years remaining and no ground rent or service charge, and building insurance currently £300 per year. Heating is via electric storage heaters; buyers should note potential running costs and consider future heating upgrades. External walls are original cavity construction and are assumed to lack added insulation, so thermal improvements are possible.

Chain-free and walking distance to open countryside, this maisonette suits first-time buyers seeking a low-maintenance starter home with easy parking. Local schools rated Good to Outstanding and very low crime rates add to the appeal. Video viewings are available but undertake any further checks you require if buying without a physical visit.

Property Details

Image Descriptions

Floorplan Description

Rooms

Textual Property Features

Target Audience

AI Tags

Detected Visual Features

EPC Details

Nearby Schools

Nearest Bars And Restaurants

,,,,}

Nearest General Shops

,,}

Nearest Grocery shops

,,}

Nearest Supermarkets

,,}

Nearest Religious buildings

,,}

Nearest Medical buildings

,,,}

Nearest Airports

}

Nearest Leisure Facilities

,,,,}

Nearest Tourist attractions

,,}

Nearest Train stations

,,,,}

Nearest Bus stations and stops

,,,,}

Nearest Hotels

,,}

Tags

Local Market Stats

AirBnB Data

Similar Properties

Meta

High Res Images

Compatible Images

Low res Images

Thumbnails

Raw Images

High Res Floorplan Images

Compatible Floorplan Images

Low res Floorplan Images

FloorplanImages Thumbnail

Raw Floorplan Images