Spacious three-bedroom home near Lindfield cafes and Haywards Heath station.
Long lease (c.977 years) with share of freehold
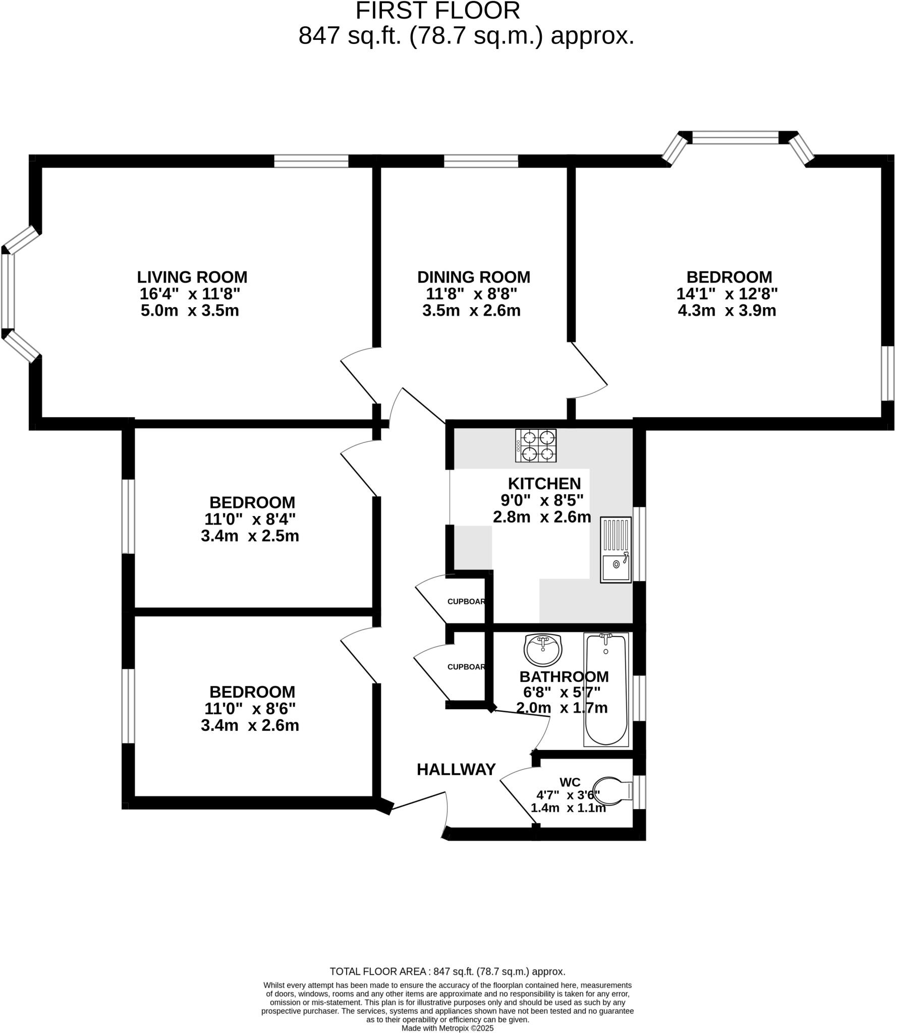
Tucked on a peaceful corner of a sought-after private road between Haywards Heath and Lindfield, this light-filled three-bedroom maisonette balances village charm with town convenience. The layout feels spacious and airy throughout, with two reception rooms that suit family living, home working or sociable entertaining. A stylish, modern kitchen and large windows further enhance the bright, contemporary feel.
Practical features include a garage, residents’ parking and a long lease with a share of freehold (approximately 977 years remaining), making ownership straightforward. The location is a major selling point: a short stroll to Lindfield High Street and The Broadway cafés, shops and restaurants, with Haywards Heath station within easy reach for fast services to London and the coast.
The property is offered chain-free and presents well externally, in a maintained red-brick block with communal grounds. Service charges are circa £1,200 per year and council tax is moderate. Internally the apartment is average-sized at around 847 sq ft and appears well-kept, though there is scope for modest updating to add value or personalise the finish.
This home will suit growing families seeking convenient commuter links and local schools, buy-to-let investors targeting strong rental demand, or anyone wanting low-maintenance living with the security of a long lease and garage.
2 bedroom flat for sale in Pelham Road, Lindfield, Haywards Heath, RH16 — £250,000 • 2 bed • 1 bath • 727 ft²
2 bedroom maisonette for sale in Newton Court, Haywards Heath, West Sussex, RH16 — £225,000 • 2 bed • 1 bath • 630 ft²
2 bedroom apartment for sale in Littlecote House, 28 Compton Road, Haywards Heath, West Sussex, RH16 — £275,000 • 2 bed • 2 bath • 792 ft²
2 bedroom ground floor maisonette for sale in High Trees, Haywards Heath, West Sussex, RH16 — £240,000 • 2 bed • 1 bath • 529 ft²
2 bedroom flat for sale in Heath Road, Haywards Heath, RH16 — £240,000 • 2 bed • 1 bath • 661 ft²
2 bedroom flat for sale in Appledore Gardens, Lindfield, RH16 — £310,000 • 2 bed • 1 bath • 700 ft²










































