**Standout Features:**
- Attractive end-terrace Victorian townhouse
- Fully refurbished and modernized in 2020
- Four spacious bedrooms and three modern bathrooms
- Stunning views of Camel Estuary
- Private, enclosed two-tier courtyard garden
- Fully furnished with stylish fixtures and traditional elements
- Successful history as a holiday let
**Potential Downsides:**
- EPC rating F (may require energy improvements)
- Some areas lack insulation
- Compact plot size
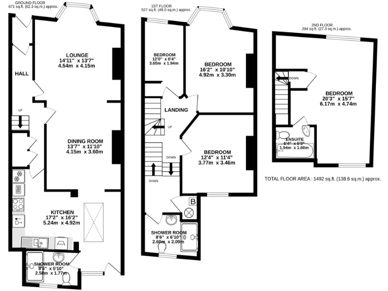
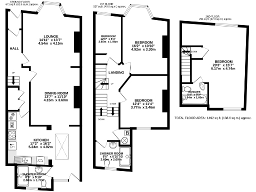
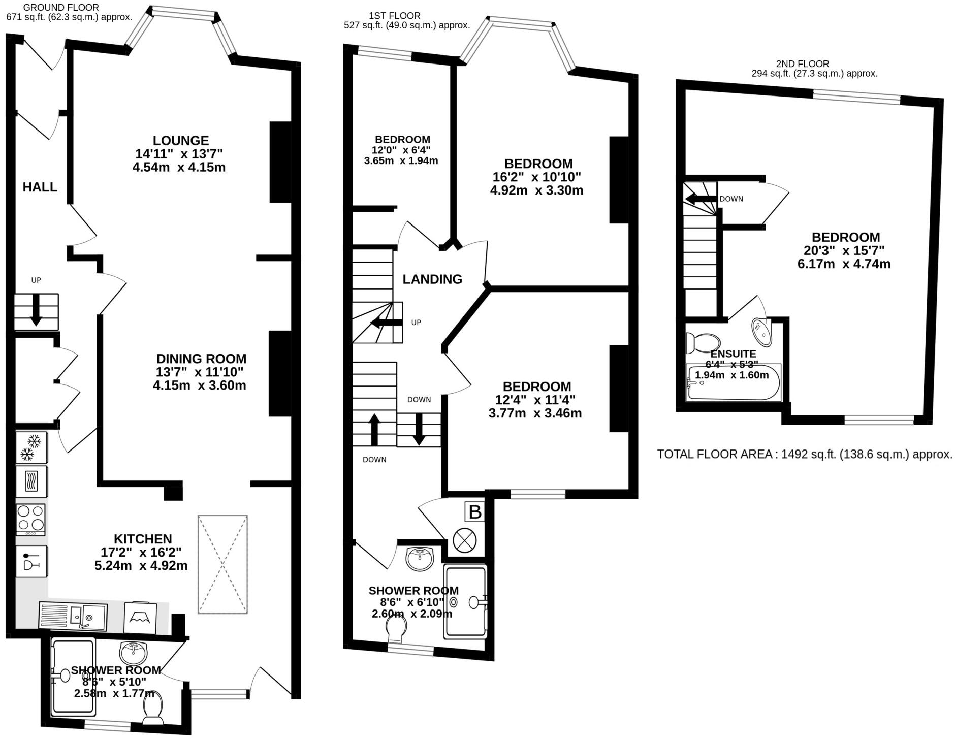
Nestled in the charming Old Part of Padstow, Heron Cottage is a beautifully refurbished end-terrace Victorian townhouse offering a blend of modern amenities and traditional aesthetics. Spanning three spacious stories, this four-bedroom, three-bathroom home showcases stylish design, including a well-lit sitting room with a bay window and a contemporary kitchen/diner equipped with integrated modern appliances. The property's impressive views of the Camel Estuary add an enchanting element to the serene atmosphere. A private, enclosed courtyard garden sets the stage for delightful alfresco dining experiences.
While it comes fully furnished, the property features an EPC rating of F, suggesting the need for energy enhancements in the future. Additionally, being located in a sought-after area with low crime rates, excellent mobile and broadband connectivity, and a wealth of nearby amenities—including shops, restaurants, and renowned seafood venues—Heron Cottage represents an outstanding opportunity for families, first-time buyers, or investors seeking a turnkey home with rental potential. Don’t miss out on this perfect blend of historical charm and modern convenience in the heart of Padstow!
4 bedroom cottage for sale in Harbours Reach, Padstow, PL28 — £895,000 • 4 bed • 2 bath
2 bedroom end of terrace house for sale in Hill Street, Padstow, Cornwall, PL28 — £575,000 • 2 bed • 1 bath • 732 ft²
3 bedroom semi-detached house for sale in Glynn Road, Padstow, PL28 — £600,000 • 3 bed • 2 bath • 1123 ft²
3 bedroom terraced house for sale in Church Lane, Padstow, Cornwall, PL28 — £999,950 • 3 bed • 3 bath • 1247 ft²
2 bedroom terraced house for sale in Cross Street, Padstow, PL28 — £395,000 • 2 bed • 1 bath • 581 ft²
House for sale in Cross Street, Padstow, PL28 — £320,000 • 1 bed • 1 bath • 415 ft²


























































