**Standout Features:**
- Current tenant with a rental income of £550.00 per month
- Impressive 9.85% rental yield
- Spacious, well-kept flat with stunning views
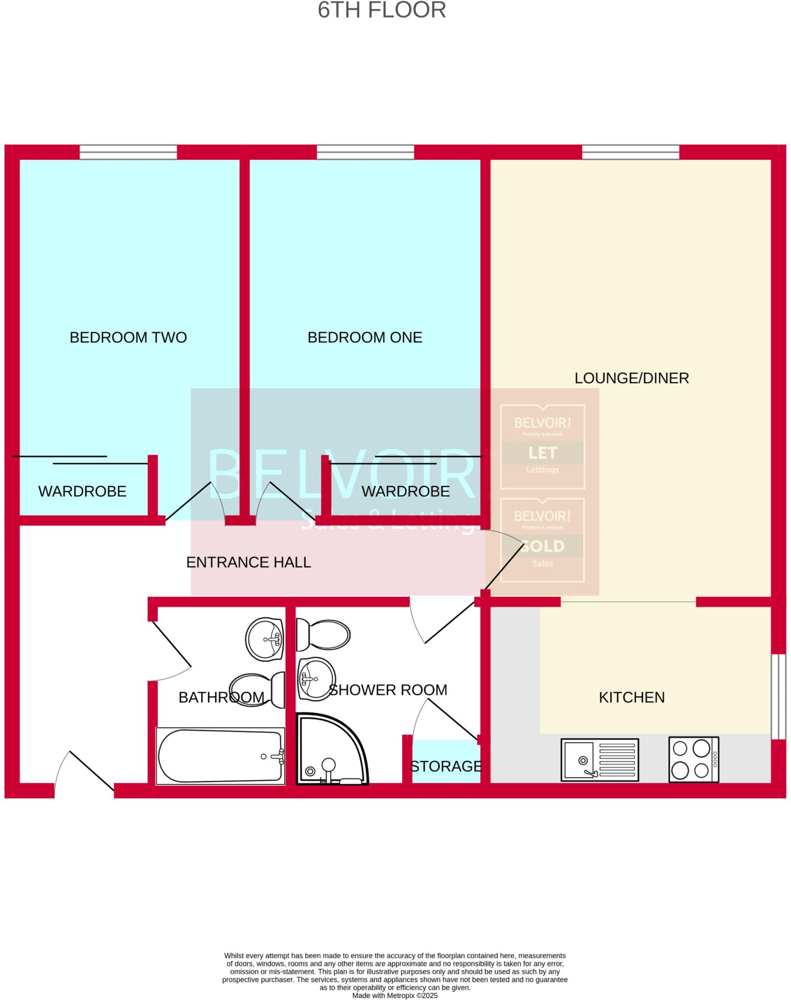
- Two large bedrooms and two bathrooms (family bathroom and shower room)
- Chain-free with potential for vacant possession
- Average-sized flat in a modern high-rise building
This modern sixth-floor flat in Willenhall town centre is an exceptional opportunity for investors or first-time buyers alike. With a solid tenant in place, generating £550 per month, you can enjoy an enticing rental yield of 9.85%. The property, maintained to an immaculate standard, features two spacious bedrooms and both a family bathroom and a shower room, catering to a family-friendly lifestyle.
Located in a vibrant urban area, this flat offers excellent access to local transport, schools rated 'Good' by Ofsted, and a variety of amenities. Enjoy natural light pouring into the open-plan living and dining area while taking in the stunning city views. Don't miss out on the rare chance for a property that combines immediate rental income with the flexibility of vacant possession—this could be your perfect investment or home! With no upward chain, act quickly to secure this great find!
*Additional information: 104 years remaining on the lease, very cheap council tax, and a manageable service charge of £1,524.58 per annum make this an affordable option in a rapidly developing area.*
2 bedroom flat for sale in Gomer Street, Willenhall, Wolverhampton, WV13 — £65,000 • 2 bed • 2 bath • 711 ft²
2 bedroom flat for sale in Gomer Street, Willenhall, WV13 — £70,000 • 2 bed • 2 bath
2 bedroom flat for sale in Gomer Street, Willenhall, West Midlands, WV13 — £60,000 • 2 bed • 1 bath • 720 ft²
2 bedroom flat for sale in Brereton Road, Willenhall, WV12 — £95,000 • 2 bed • 1 bath • 657 ft²
1 bedroom apartment for sale in Lichfield House, 232 Lichfield Road, Willenhall, WV12 5AB, WV12 — £85,000 • 1 bed • 1 bath • 463 ft²
2 bedroom flat for sale in Leicester Street, Wolverhampton, WV6 — £85,000 • 2 bed • 1 bath • 548 ft²














































