SG5 3AH - 5 bed spacious detached cottage in High Street, SG5 3AH

View on Property Piper

5 bedroom detached house for sale in High Street, Offley, SG5

Summary - 37 HIGH STREET OFFLEY HITCHIN SG5 3AH

5 bed 3 bath Detached

Large family home on a generous plot with countryside views and flexible studio potential.
Five double bedrooms with two en-suites
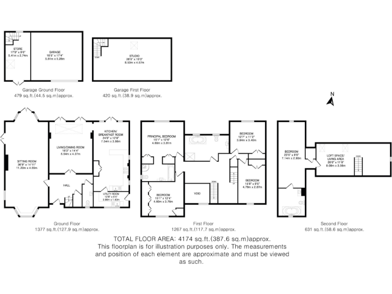
A substantial five-bedroom detached home arranged over three floors, set on just over 0.25 acres in a quiet private road off High Street, Great Offley. Built in 2003 and presented in good order, the house offers more than 3,100 sq ft of flexible family accommodation, including two large reception rooms, an open-plan kitchen/dining area and a 36ft triple-aspect sitting room with a wood-burning stove. The rear faces open countryside with long views towards Hitchin.

Layout is family-focused: principal bedroom with en-suite, three further double bedrooms on the first floor with fitted wardrobes and family bathroom, plus a loft-level living area and fifth bedroom with en-suite. Practical spaces include a separate utility, cloakroom, double garage and shingle driveway behind double wooden gates. The rear garden is mainly lawn with an extensive patio and mature planting.

Notable positives are the generous plot, strong natural light, countryside outlook and potential for additional studio or ancillary accommodation above the garage (subject to consent). Important considerations: the property is heated by an oil-fired boiler (not a community supply), council tax is above average, and the sizable plot and outbuildings will require ongoing maintenance. Broadband and local services are average, while mobile signal is excellent.

This home suits a growing family seeking space and rural character with good commuting links (Hitchin and Luton Parkway stations). Buyers should factor typical upkeep for a large detached house and any costs for converting garage or adapting the loft studio space if desired.

Property Details

Image Descriptions

Floorplan Description

Rooms

Textual Property Features

Target Audience

AI Tags

Detected Visual Features

EPC Details

Nearby Schools

Nearest Bars And Restaurants

,,,,}

Nearest General Shops

,,}

Nearest Grocery shops

,,}

Nearest Supermarkets

,,}

Nearest Religious buildings

,,}

Nearest Medical buildings

,,,}

Nearest Airports

,}

Nearest Leisure Facilities

,,,,}

Nearest Tourist attractions

,,}

Nearest Train stations

,,,,}

Nearest Bus stations and stops

,,,,}

Nearest Hotels

,,}

Tags

Local Market Stats

Similar Properties

Meta

High Res Images

Compatible Images

Low res Images

Thumbnails

Raw Images

High Res Floorplan Images

Compatible Floorplan Images

Low res Floorplan Images

FloorplanImages Thumbnail

Raw Floorplan Images