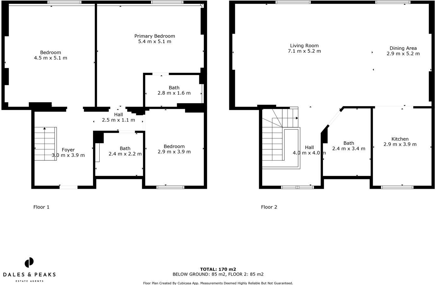
**Standout Features:**
- 3 bedrooms, 2 bathrooms in a Grade II listed duplex apartment.
- Stunning Derbyshire Dales views from an elevated position.
- State-of-the-art residents' amenities including a gym, spa, and orangery.
- Unique historic features blended with modern refinements.
- Leasehold tenure with 998 years remaining, but service charge is above average at £5,760pa.
**Summary:**
Experience the elegance of Riber Castle, a historically rich Grade II listed duplex apartment that seamlessly combines modern living with classic charm. Spanning an impressive 1,904 square feet, this three-bedroom, two-bathroom residence is bathed in natural light and boasts breathtaking views of the Derbyshire Dales. Enter into a grand hallway leading to a spacious open-plan living and dining area, perfect for entertaining or family gatherings. The modern kitchen is fitted with high-end appliances, while the principal bedroom includes an ensuite for added privacy.
Residents benefit from luxurious communal spaces such as a fully-equipped gym, rejuvenating spa, and a beautifully landscaped orangery for relaxation or work. While the apartment's maintenance is solid, potential buyers should be mindful of the service charge, which is somewhat elevated. Set against the backdrop of Matlock's scenic countryside and just a stone’s throw from the Peak District, this extraordinary property offers a rare opportunity to live in a stunningly restored piece of history. Viewing is by appointment only—don't miss the chance to become part of this iconic landmark's future.
3 bedroom apartment for sale in Apt 17, Riber Castle, Riber, Matlock, Derbyshire, DE4 5JU, DE4 — £495,000 • 3 bed • 1 bath • 1454 ft²
2 bedroom apartment for sale in Apt 18, Riber Castle, Riber Castle Estate, Matlock, DE4 5JU, DE4 — £675,000 • 2 bed • 2 bath • 1572 ft²
2 bedroom apartment for sale in Apt 2, Riber Castle, Riber, Matlock, Derbyshire, DE4 5JU, DE4 — £825,000 • 2 bed • 2 bath • 1736 ft²
2 bedroom apartment for sale in Apt 10, Riber Castle, Riber Castle Estate, Matlock, DE4 5JU, DE4 — £625,000 • 2 bed • 2 bath • 1572 ft²
2 bedroom apartment for sale in Apt 8, Riber Castle, Riber, Matlock, Derbyshire, DE4 5JU, DE4 — £600,000 • 2 bed • 2 bath • 1384 ft²
2 bedroom duplex for sale in Riber Castle, Riber, Matlock, Derbyshire, DE4 — £850,000 • 2 bed • 2 bath • 1618 ft²


















































































































































