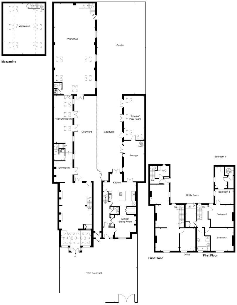
Large High Street showroom and substantial rear workshop space
Refurbished adjoining semi‑detached house with flexible accommodation
Private forecourt parking and rear enclosed amenity area
All mains services connected; includes three‑phase electricity
Suitable for retail, food/drink, manufacturing or residential conversion
High flood risk — requires mitigation and insurance assessment
Local crime levels above average — recommend security investment
Change of use or conversion subject to planning and statutory checks
A substantial mixed commercial/residential freehold on Leicester Road, Blaby, offering a large High Street showroom and workshop alongside a refurbished semi‑detached house. The ground‑floor showroom and rear workshop provide generous footprint for retail, light manufacturing or owner‑operator business use, with private forecourt parking and rear amenity space. All mains services are connected, including three‑phase electricity, and both buildings have recent glazing and gas central heating.
The adjoining semi‑detached house is refurbished and stylishly presented, currently arranged with flexible accommodation including multiple reception rooms, kitchen and bedrooms. This creates immediate rental or owner‑occupier potential, or short‑term conversion prospects for additional residential units subject to planning consent. The property's EPCs (B for commercial, D for house) and fast broadband make it suitable for modern retail, café or mixed residential use.
Important considerations: the site lies in a high flood‑risk area and local crime levels are above average; buyers should factor in flood mitigation and security measures. Any change of use or residential conversion will require planning permission and statutory checks. The commercial spaces have rateable value implications and potential business rates liabilities.
Overall this is a rare town‑centre scale opportunity for an owner‑operator, investor or developer prepared to manage planning, flood risk and local market considerations. The combination of showroom/workshop scale, parking and a refurbished house gives multiple short‑ and medium‑term uses once due diligence is completed.















































































































































































