**Standout Features:**
- Fully consented building plot in the New Town Conservation Area
- Designed by acclaimed Richard Murphy Architects
- Planning permission for an exceptional detached home
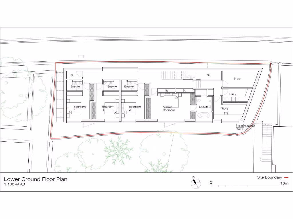
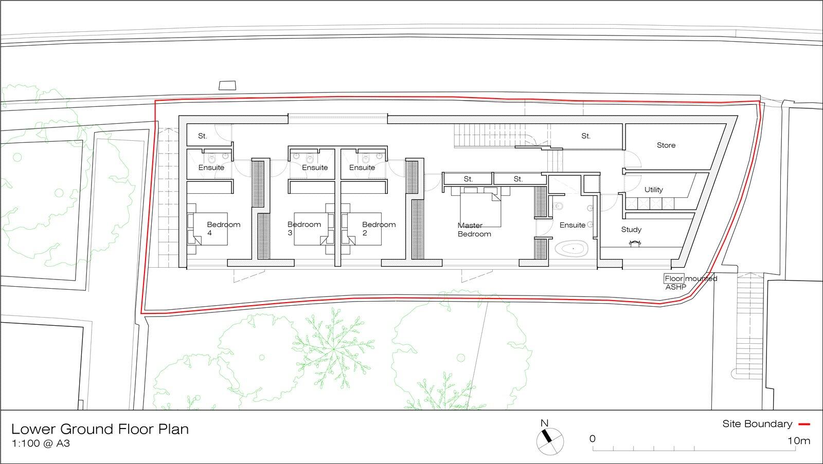
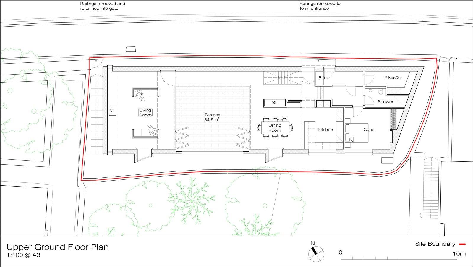
- Spacious design featuring five double bedrooms and five baths/shower rooms
- Amenities and transport links conveniently close
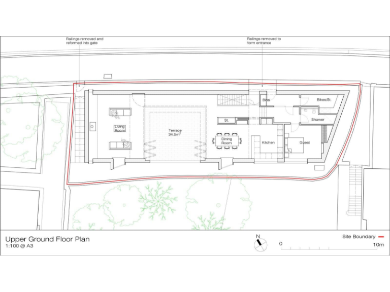
This is a rare opportunity to secure a prime building plot in Edinburgh's historic New Town, with planning permission already in place (24/01889/FUL) for a stunning contemporary home designed by the acclaimed Richard Murphy Architects. Spanning 299 m² internally plus an additional 33 m² terrace, the design promises a luxurious living experience with five spacious double bedrooms, each accompanied by an en-suite bathroom, and generous reception areas that flow seamlessly onto a west-facing terrace.
Nestled in a prestigious area, this key location grants access to a vibrant array of local amenities, including shops, restaurants, art galleries, and exceptional public transport connections. Close to the city center and renowned schools, this plot offers both a family-friendly environment and excellent potential for investment.
While this plot represents a fantastic prospect, it’s important to be aware that the council tax details are currently unknown. Also, as a building project, it requires keen planning and thought towards future developments. Don’t miss this exclusive chance to create your dream home in one of the most sought-after residential areas of Edinburgh. This plot won't last long, so act quickly to seize this unique opportunity!
Land for sale in Chester Street Lane, West End, Edinburgh, EH3 — £250,000 • 1 bed • 1 bath • 861 ft²
Commercial development for sale in 2 Fraser Avenue, Edinburgh, EH5 2AE, EH5 — £145,000 • 1 bed • 1 bath
Plot for sale in Ravelston Dykes Road, Edinburgh, EH4 — £795,000 • 1 bed • 1 bath • 5000 ft²
Plot for sale in 17 Hawthornvale, Newhaven, Edinburgh, EH6 4JQ, EH6 — £125,000 • 1 bed • 1 bath • 1593 ft²
Plot for sale in Braid Road, Edinburgh, EH10 — £295,000 • 1 bed • 1 bath • 1700 ft²
Land for sale in Juniper Park Road, Juniper Green, Midlothian, EH14 — £295,000 • 1 bed • 1 bath


































