Move-in ready apartment with private outdoor space and excellent transport links.
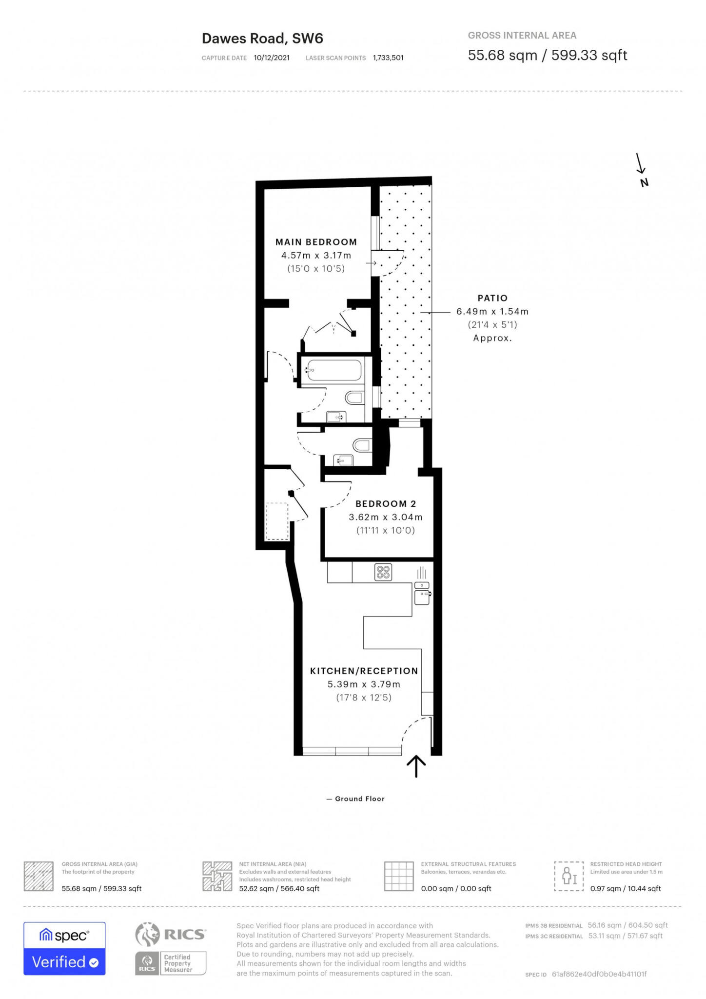
- Chain-free ground-floor two-bedroom garden flat
- Open-plan kitchen with Bosch appliances and Quartz worktops
- Private patio/terrace for outdoor space
- Compact overall size: approx 599 sq ft
- Electric heating (boiler and radiators); check running costs
- Long lease reported but exact tenure details not provided
- Double glazing present; install date unknown
- Council tax band above average for the area
This chain-free, ground-floor apartment offers a smart, modern interior within a period building, arranged as two double bedrooms, an eat-in open-plan kitchen and a private patio. The kitchen has integrated Bosch appliances, Quartz worktops and a breakfast bar — well suited to everyday living or entertaining. Transport links are excellent with Fulham Broadway (District Line) and multiple bus routes close by.
The flat totals about 599 sq ft, so rooms are well-proportioned but the overall footprint is compact. Heating is electric with a boiler and radiators; the property has double glazing and internal wall insulation but the exact glazing installation date and full tenure details are not provided. Council tax is above average for the area.
This will suit a first-time buyer or investor seeking a move-in-ready property in an affluent Fulham location, close to local shops, schools and amenities. Buyers should note the small total size and clarify tenure and service/maintenance arrangements before committing. Flooding risk is very low and local area characteristics are inner-city cosmopolitan with a highly qualified local workforce.
 2 bedroom flat for sale in Dawes Road, London, SW6 — £575,000 • 2 bed • 2 bath • 623 ft²
 2 bedroom flat for sale in Dawes Road, London, SW6 — £575,000 • 2 bed • 2 bath • 623 ft² 2 bedroom flat for sale in Fulham Palace Road, London, SW6 — £750,000 • 2 bed • 2 bath • 893 ft²
 2 bedroom flat for sale in Fulham Palace Road, London, SW6 — £750,000 • 2 bed • 2 bath • 893 ft² 2 bedroom flat for sale in Harwood Road, Fulham, SW6 — £600,000 • 2 bed • 1 bath • 781 ft²
 2 bedroom flat for sale in Harwood Road, Fulham, SW6 — £600,000 • 2 bed • 1 bath • 781 ft² 2 bedroom flat for sale in Dawes Road, London, SW6 — £525,000 • 2 bed • 2 bath • 626 ft²
 2 bedroom flat for sale in Dawes Road, London, SW6 — £525,000 • 2 bed • 2 bath • 626 ft² 2 bedroom flat for sale in Edenvale Street, Fulham, London, SW6 — £650,000 • 2 bed • 1 bath • 545 ft²
 2 bedroom flat for sale in Edenvale Street, Fulham, London, SW6 — £650,000 • 2 bed • 1 bath • 545 ft² 2 bedroom flat for sale in Brompton Park Crescent, London, SW6 — £550,000 • 2 bed • 1 bath • 513 ft²
 2 bedroom flat for sale in Brompton Park Crescent, London, SW6 — £550,000 • 2 bed • 1 bath • 513 ft²










































