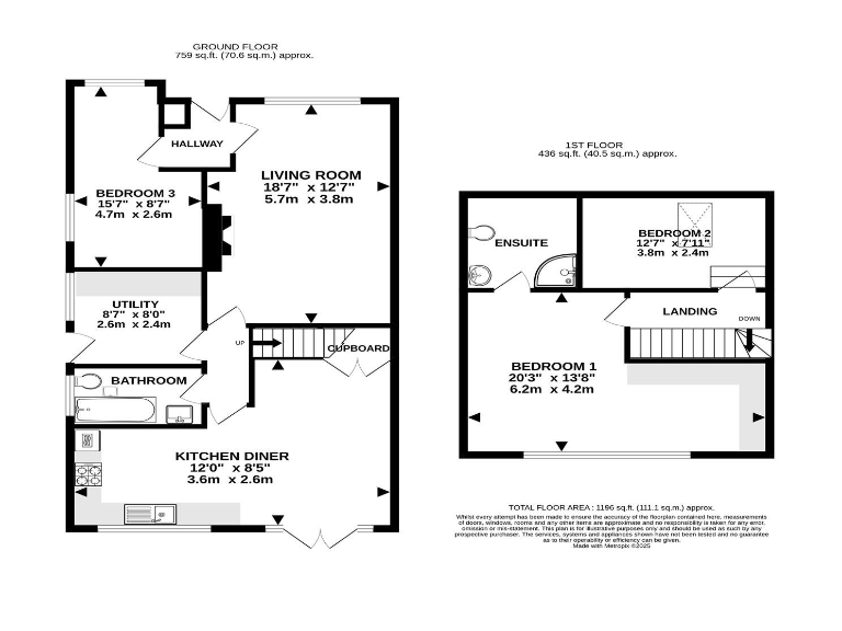
**Standout Features:**
- Spacious driveway with parking for multiple cars
- Detached garage for additional storage or workshop space
- Open-plan kitchen dining area with garden views
- Loft conversion featuring two bedrooms and an ensuite
- Located in a sought-after, quiet cul-de-sac in Hale
- No onward chain – ready for immediate occupancy
**Summary:**
Discover the charm of this well-presented semi-detached bungalow in the desirable area of Hale, perfect for families or buyers seeking flexibility. This property boasts a welcoming lounge, a spacious open-plan kitchen dining room with direct access to the private rear garden, and a separate utility room, enhancing daily convenience. The ground floor features a modern family bathroom and an adaptable third bedroom, ideal for guests or as a study.
Upstairs, you'll find the tranquil master bedroom with its own ensuite, complemented by a cozy second bedroom, great for a nursery or home office. Outside, the generous driveway and detached garage provide ample parking and storage options, while the landscaped garden offers a peaceful retreat for relaxation or gatherings.
Positioned in an affluent area with excellent local amenities and schools nearby, this home is chain-free and ready for you to move in and customize to your tastes. Don’t miss out on this unique opportunity to settle in a thriving community with a comfortable lifestyle – schedule a viewing today!







































































