TN11 9ED - 4 bedroom detached house for sale in Ashley Road, Hildenbor…

View on Property Piper

4 bedroom detached house for sale in Ashley Road, Hildenborough, TN11

Summary - 53 ASHLEY ROAD HILDENBOROUGH TONBRIDGE TN11 9ED

4 bed 2 bath Detached

**Standout Features:**
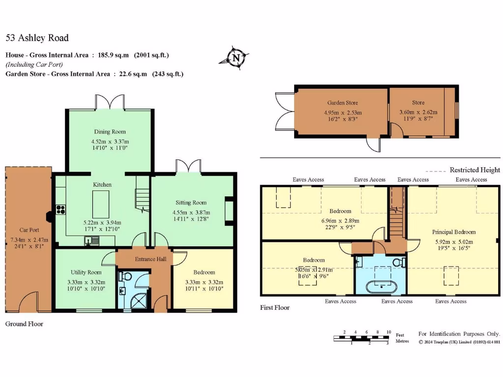
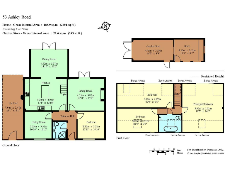
- Detached four-bedroom Craftcast chalet bungalow
- Modern refitted kitchen/breakfast room and a versatile ground floor
- Contemporary shower room and first floor bathroom
- Spacious conservatory/dining area with garden views
- Beautiful secluded rear garden and outdoor patio
- Carport and concrete garage/storage with power
- Quiet residential location, close to schools and amenities

**Potential Downsides:**
- Detached system-built structure may require attention to heating insulation
- Broadband speeds rated as very slow
- Potentially limited outdoor space due to the compact plot size

Embrace the charm of this detached four-bedroom Craftcast chalet bungalow nestled in a serene Hildenborough neighborhood. Ideal for families, the home boasts a modern refitted kitchen and dining area, complemented by a spacious conservatory that provides an inviting space to enjoy views of the landscaped rear garden. The ground floor features a stylish contemporary shower room and a versatile family room that can easily serve as a fourth bedroom. With a majestic secluded garden that's perfect for outdoor gatherings, this home is a peaceful retreat.

Safety and community are paramount here, with excellent local schools and amenities just a short walk or cycle away. The rare combination of modern comforts and a tranquil setting makes this property an incredible opportunity that won't last long. Whether you're envisioning family life, future renovations, or simply wanting a secure and pleasant place to call home, this bungalow offers boundless potential. Don't miss out—this is the escape you've been looking for!

Property Details

Brochure Descriptions

Image Descriptions

Floorplan Description

Rooms

Textual Property Features

Detected Visual Features

EPC Details

Nearby Schools

Nearest Bars And Restaurants

,,,,}

Nearest General Shops

,,}

Nearest Grocery shops

,,}

Nearest Supermarkets

,,}

Nearest Religious buildings

,,}

Nearest Medical buildings

,,,}

Nearest Airports

}

Nearest Leisure Facilities

,,,,}

Nearest Tourist attractions

,,}

Nearest Train stations

,,,,}

Nearest Bus stations and stops

,,,,}

Nearest Hotels

,,}

Tags

Local Market Stats

Similar Properties

Meta

High Res Images

Compatible Images

Low res Images

Thumbnails

Raw Images

High Res Floorplan Images

Compatible Floorplan Images

Low res Floorplan Images

FloorplanImages Thumbnail

Raw Floorplan Images