Affordable top-floor one-bedroom flat in Aylesbury town centre, ideal for first-time buyers or investors.
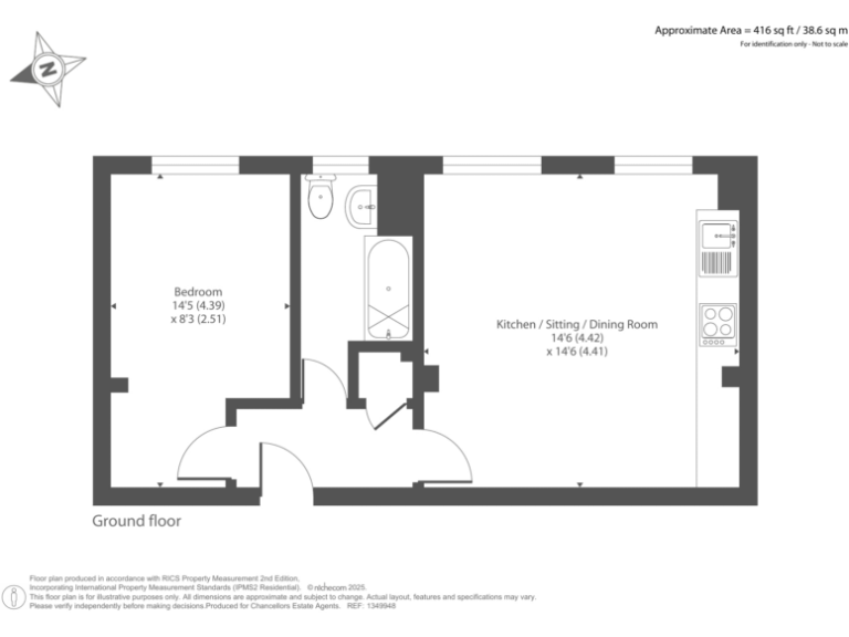
Top-floor one-bedroom apartment, compact 416 sq ft
Set on the top floor in the heart of Aylesbury, this compact one-bedroom apartment offers an affordable entry into the town centre market. The open-plan living area and separate bedroom make efficient use of 416 sq ft, while lift access and a long lease (around 981 years remaining) add practical appeal.
The kitchen is modern in style but shows signs of wear: peeling paint and an unfinished backsplash mean cosmetic work is needed. Heating is electric by room heaters, so running costs may be higher than gas-heated homes; double glazing and relatively recent construction help with insulation.
This apartment suits a first-time buyer or investor seeking a central, low-price property with clear upside after minor refurbishment. Note the property is in an area with very high recorded crime — sensible security measures and a realistic view of local resale/rental expectations are advised.
Practical benefits include excellent mobile signal, average broadband, lift access, and proximity to extensive town-centre amenities and several highly ranked secondary schools. Flood risk is low and council tax is cheap, which helps running-cost predictability.
1 bedroom apartment for sale in Great Western Street, Aylesbury, HP20 — £135,000 • 1 bed • 1 bath • 397 ft²
1 bedroom flat for sale in Aylesbury, Buckinghamshire, HP20 — £140,000 • 1 bed • 1 bath • 387 ft²
1 bedroom flat for sale in Sloane House, Cambridge Place, HP20 — £160,000 • 1 bed • 1 bath • 376 ft²
1 bedroom apartment for sale in Buckingham Street, Aylesbury, HP20 — £150,000 • 1 bed • 1 bath • 485 ft²
1 bedroom flat for sale in Aylesbury, Buckinghamshire, HP20 — £130,000 • 1 bed • 1 bath • 495 ft²
1 bedroom apartment for sale in Cambridge Place, Aylesbury, HP20 — £160,000 • 1 bed • 1 bath • 354 ft²


















































































