New boiler and full electrical rewire recently completed
Newly fitted contemporary family bathroom throughout
Off-road parking for several cars; half garage for storage
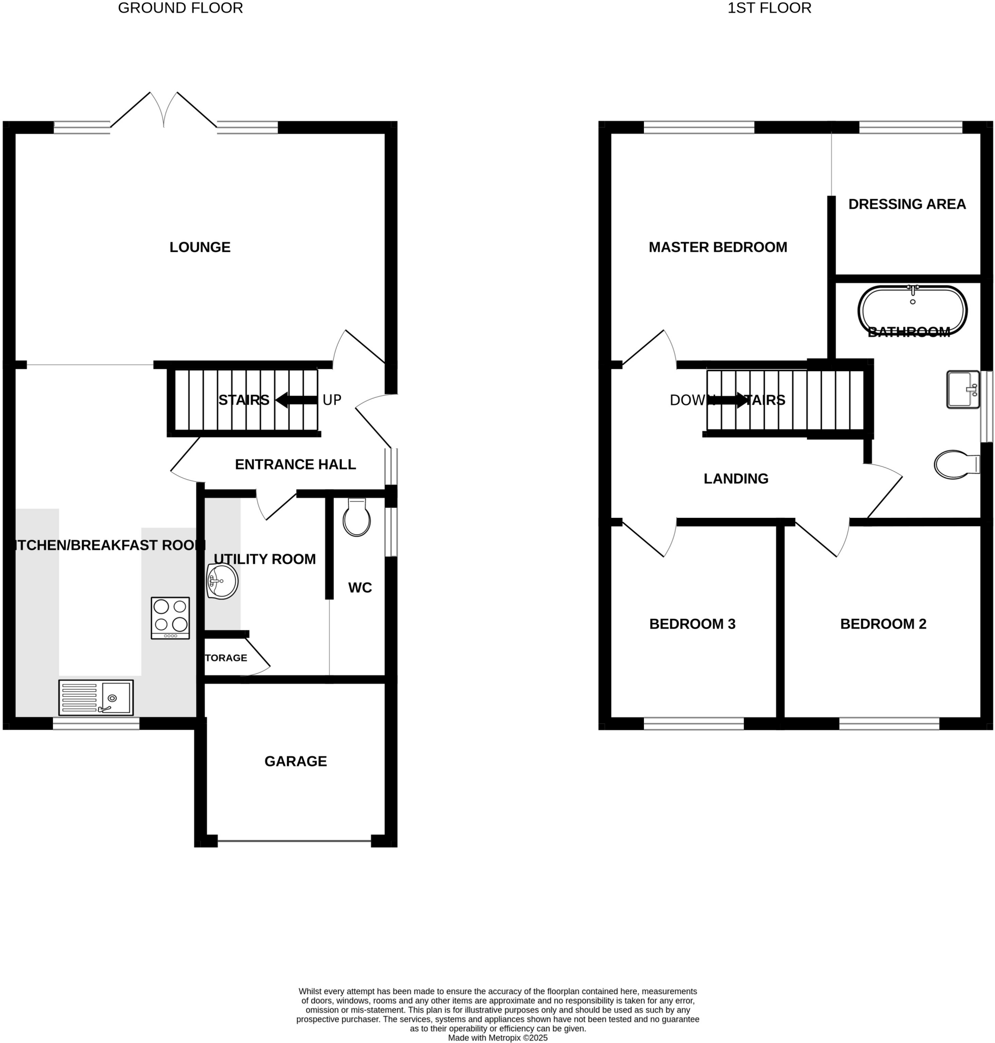
Principal bedroom with dressing area; plumbing/electrics for ensuite
Low-maintenance, enclosed rear garden with side access
Central village location near shops, schools and amenities
Compact overall size (c.795 sq ft) and small plot — limited garden space
Freehold tenure; newly renovated so largely move-in ready
Located in the heart of Tiptree village, this recently refurbished three-bedroom semi delivers a ready-to-move-in family home with modern services and convenient village living. The ground floor layout includes a bright kitchen/breakfast room opening to a spacious lounge/diner, plus a utility room and downstairs WC — practical for everyday family use.
Significant recent upgrades reduce short-term maintenance concerns: a full electrical rewire, brand-new boiler and central heating, and a contemporary bathroom. The principal bedroom includes a dedicated dressing area with existing plumbing and electrics, offering straightforward potential to add an ensuite if required.
Outside, the property benefits from a low-maintenance enclosed rear garden with side access, plus a block-paved driveway for several vehicles and a half garage useful for secure storage. Local amenities, primary schools rated Good, and fast broadband make this a sensible choice for families wanting village convenience.
Buyers should note the home sits on a relatively small plot and the overall internal size is compact (approximately 795 sq ft). The garage is a half garage rather than a full drive-in garage. These factors suit purchasers seeking a modern, low-upkeep home in a central location rather than those needing large outdoor space or extensive storage.































































































