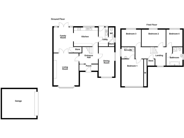
**Standout Features:**
- Spacious detached family home with an average floor size of 1,700 sq. ft.
- Features a cosy lounge with a multi-fuel burner and a modern fitted kitchen.
- Four generous bedrooms, including an en-suite and a well-appointed family bathroom.
- Ample off-road parking for up to five vehicles plus a detached garage.
- Landscaped gardens with a pond and multiple outdoor seating areas.
- Energy-efficient with owned solar panels.
**Potential Concerns:**
- Property is located in a suburb with an ageing demographic.
- Council tax band E may be above average for some budgets.
This beautifully presented detached family home offers an exceptional blend of modern comfort and spacious living, ideal for growing families. Enter through the inviting entrance porch into a cozy lounge featuring a charming multi-fuel burner—perfect for those chilly evenings. The bright and modern kitchen, equipped with integrated appliances, flows seamlessly into a snug area, utility room, and a ground-floor W/C, enhancing everyday practicality. With four ample bedrooms and a stylish en-suite, this house caters perfectly to family needs.
Outdoors, enjoy the extensive landscaped gardens complete with an attractive pond and two patio areas, perfect for entertaining or relaxation. The property provides generous off-road parking and a detached garage, ensuring convenience for households with multiple vehicles. Located in a peaceful neighborhood with excellent amenities and a low crime rate, this home is a serene sanctuary that invites warmth and comfort. Don’t miss your chance to secure this family-friendly gem—perfect for those looking for space, style, and potential to make cherished memories!
4 bedroom detached house for sale in Sawyer Drive, Biddulph, Staffordshire Moorlands, ST8 — £325,000 • 4 bed • 1 bath • 1140 ft²
4 bedroom detached house for sale in Ashover Grove, Stoke-On-Trent, Staffordshire, ST6 — £330,000 • 4 bed • 2 bath • 1065 ft²
4 bedroom detached house for sale in Charnwood, Kidsgrove, Stoke-On-Trent, ST7 — £335,000 • 4 bed • 2 bath • 1528 ft²
4 bedroom detached house for sale in Mossfield Drive, Biddulph, ST8 — £346,000 • 4 bed • 2 bath • 1313 ft²
4 bedroom detached house for sale in Park Lane, Knypersley, Staffordshire Moorlands, ST8 — £475,000 • 4 bed • 3 bath • 990 ft²
4 bedroom detached house for sale in Rustington Avenue, Meir Hay, ST3 5TS, ST3 — £350,000 • 4 bed • 2 bath • 1515 ft²






































































































































