Two-bed mid-terrace with strong refurbishment potential in North End Great Yarmouth..
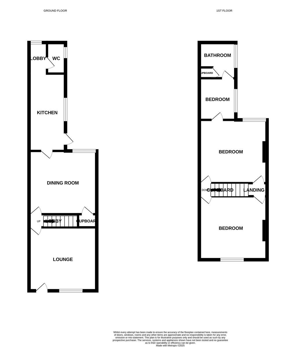
- Two bedrooms, two receptions, ground-floor cloakroom, first-floor bathroom
- Approx 797 sq ft; freehold tenure
- Victorian period features; small private garden
- Requires full cosmetic renovation; dated fittings throughout
- Solid brick walls likely uninsulated; consider insulation costs
- Double glazing present; installation date unknown
- Very low flood risk; council tax very cheap
- Area: very deprived, constrained renters; factor rental/resale risk
A two-bedroom Victorian mid-terrace with clear renovation potential in Great Yarmouth’s North End. The property occupies approximately 797 sq ft, is freehold and offers two reception rooms, a ground-floor cloakroom and a first-floor bathroom — a straightforward layout for a refurbishment project. Built circa early 1900s, it retains period character such as sash windows and an arched doorway, and benefits from a small private garden and very low flood risk.
This is best suited to investors seeking a buy-to-let in a constrained rental area or first-time buyers prepared to renovate. The home needs updating throughout: heating is via a mains-gas boiler and radiators, glazing is double but install date is unknown, and external solid brick walls are likely uninsulated. Council tax is very cheap, mobile signal is excellent and broadband speeds are fast, which supports rental demand and resale potential after improvements.
Location strengths include proximity to local amenities, bus services and several Ofsted-rated good schools, plus easy access to coastal walks. Significant area-level factors are high deprivation and a predominance of blue-collar terraces, so rental yields or resale should be considered against local market conditions. Buyers should factor in refurbishment costs and possible wall insulation work when assessing value against the guide price range of £110,000–£130,000.
3 bedroom end of terrace house for sale in Garrison Road, Great Yarmouth, NR30 — £140,000 • 3 bed • 2 bath
3 bedroom terraced house for sale in East Road, Great Yarmouth, NR30 — £80,000 • 3 bed • 1 bath • 872 ft²
4 bedroom terraced house for sale in Priory Plain, Great Yarmouth, NR30 — £130,000 • 4 bed • 1 bath • 1101 ft²
3 bedroom terraced house for sale in Arundel Road, Great Yarmouth, NR30 — £160,000 • 3 bed • 2 bath
4 bedroom end of terrace house for sale in Lichfield Road, Great Yarmouth, NR31 — £170,000 • 4 bed • 1 bath • 1776 ft²
2 bedroom terraced house for sale in Nelson Road Central, Great Yarmouth, NR30 — £90,000 • 2 bed • 1 bath • 534 ft²






































































