**Standout Features:**
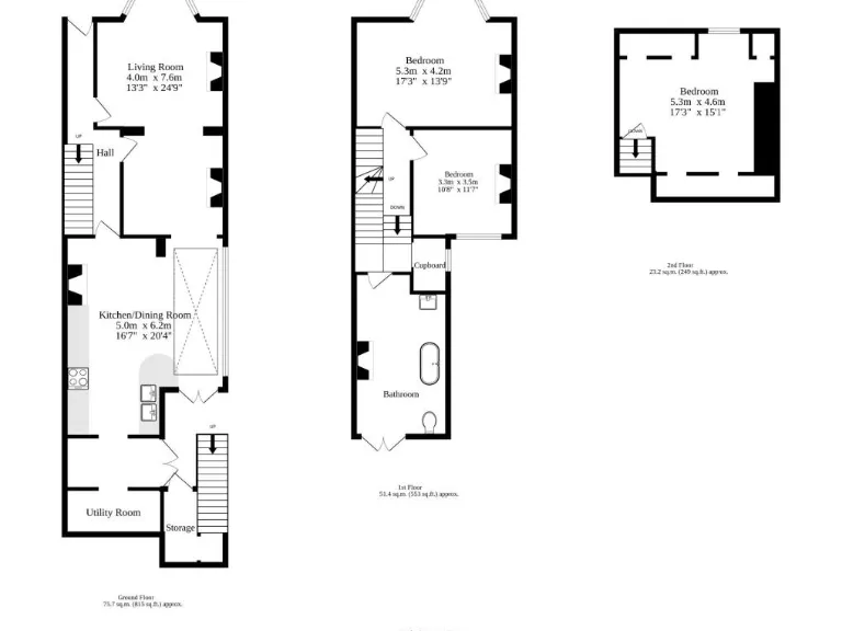
- Charming three-bedroom Victorian home
- Extended, extensively insulated kitchen with marble worktops
- Beautifully designed mature two-tier garden
- Original period features including cast-iron fireplaces and decorative trims
- Spacious layout with an airy open-plan living and dining area
- Conveniently located near Brighton's vibrant amenities
**Potential Concerns:**
- Property constructed before 1900, which may require future maintenance
- Double glazing installed pre-2002 may need updating for improved efficiency
Discover this exceptional three-bedroom Victorian home nestled on one of Brighton's most sought-after streets. Blending historical charm with modern comfort, this inviting property boasts an extended, extensively insulated kitchen, featuring bespoke handmade design elements, marble worktops, and quality appliances. The open-plan living area, flooded with natural light from its glass ceiling, creates an inviting space for family gatherings or entertaining friends.
Step outside to an enchanting, landscaped garden highlighted by mature trees and a rustic Victorian Ashburnham brick patio, perfect for summer evenings. Inside, you'll appreciate the thoughtful preservation of period features such as cast-iron fireplaces and exposed floorboards, providing a warm ambiance throughout. The generous principal bedroom with bay window views, along with a spacious bathroom that opens to the garden, enhances the comfort and luxury of this home.
Convenience is at your doorstep with nearby parks, local shops, and Brighton Station just a short stroll away. Ideal for family living or investment opportunity, this delightful gem could be your new sanctuary in a cosmopolitan neighborhood. Don’t miss your chance to own this unique property – truly a rare find in the market!
4 bedroom terraced house for sale in Eaton Place, Brighton, BN2 — £950,000 • 4 bed • 2 bath • 2124 ft²
3 bedroom end of terrace house for sale in Park Crescent Terrace, brighton, BN2 — £750,000 • 3 bed • 2 bath • 1339 ft²
4 bedroom terraced house for sale in Kensington Place, Brighton, BN1 — £900,000 • 4 bed • 2 bath • 1370 ft²
3 bedroom house for sale in Montpelier Street, Brighton, East Sussex, BN1 — £975,000 • 3 bed • 2 bath • 1199 ft²
3 bedroom terraced house for sale in Edburton Avenue, Brighton, East Sussex, BN1 — £850,000 • 3 bed • 1 bath • 1173 ft²
4 bedroom terraced house for sale in Guildford Road, Brighton, East Sussex, BN1 — £1,180,000 • 4 bed • 2 bath • 1740 ft²


















































































































