Three-bedroom home with garden and excellent access to university and hospital.
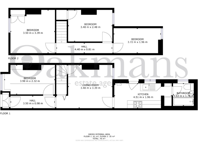
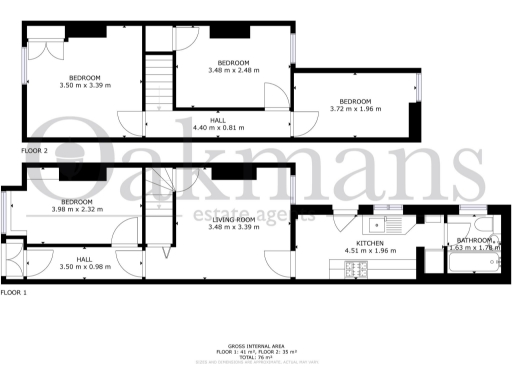
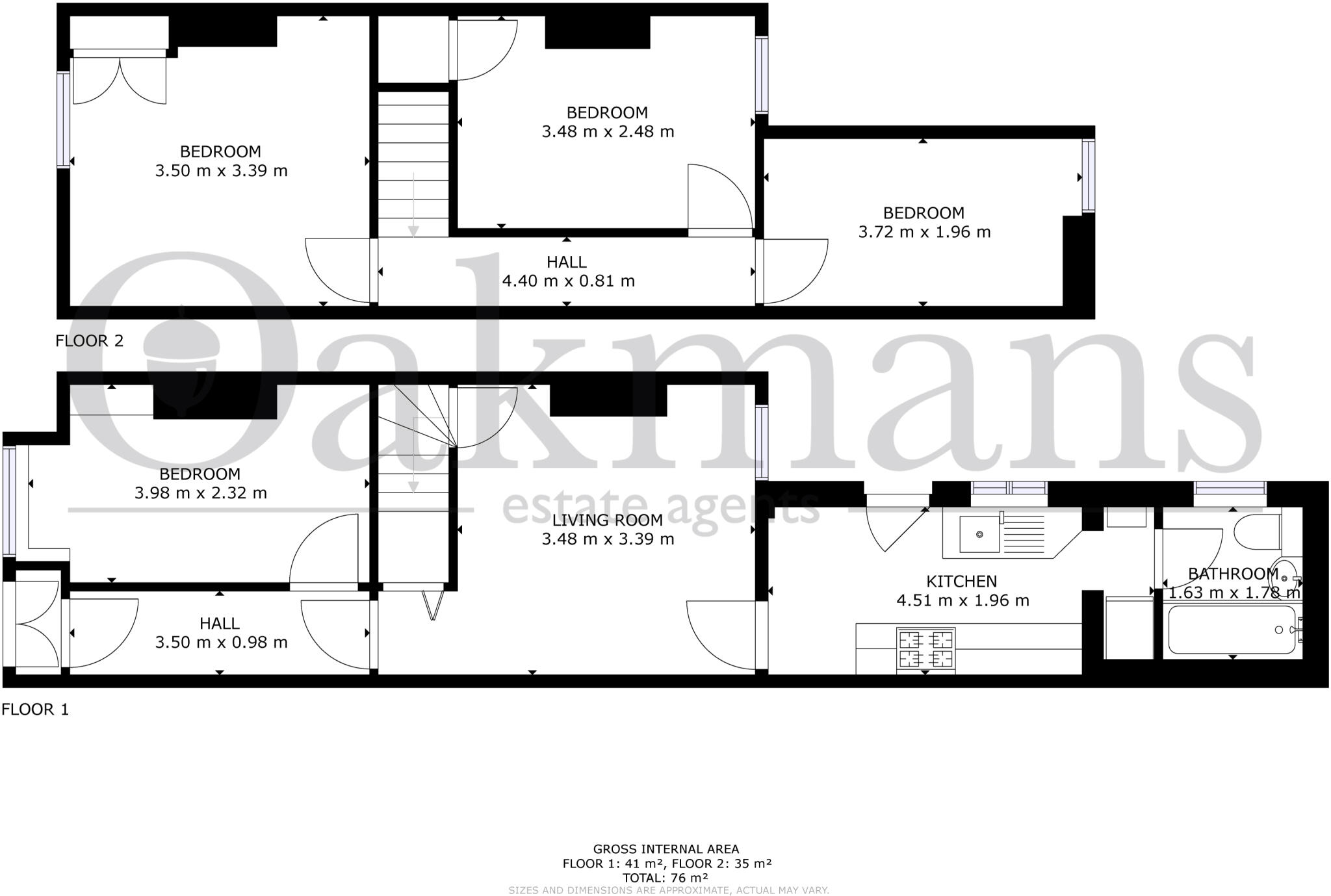
Three bedrooms with two reception rooms, practical traditional layout
This three-bedroom mid-terrace sits in a prime Selly Oak position close to the University of Birmingham, Queen Elizabeth Hospital and local transport links. The house offers two reception rooms, a traditional galley kitchen, and a lawned rear garden — a practical layout for first-time buyers or buy-to-let investors seeking proximity to major local employers and student demand.
The property is solid brick, double glazed (installed post-2002) and runs on mains gas with a boiler and radiators. At around 818 sqft across multiple storeys, rooms are modest in size but well proportioned; council tax is described as cheap which supports lower running costs. The no-upward-chain status and freehold tenure simplify purchase logistics.
Material considerations are straightforward: the house dates from c.1900–1929 and the solid walls likely lack cavity insulation, so energy-efficiency upgrades could be needed. There is a single bathroom and a small rear plot, and the immediate area records above-average crime and higher local deprivation measures. For buyers prepared to modernise—improving insulation, heating efficiency or cosmetic finishes—this property offers clear value and rental or owner-occupier potential.
3 bedroom terraced house for sale in Milner Road, Birmingham, West Midlands, B29 — £235,000 • 3 bed • 1 bath • 712 ft²
3 bedroom semi-detached house for sale in Shenley Fields Road, Birmingham, West Midlands, B29 — £280,000 • 3 bed • 1 bath • 1076 ft²
3 bedroom semi-detached house for sale in Corisande Road, Birmingham, West Midlands, B29 — £270,000 • 3 bed • 1 bath • 820 ft²
3 bedroom end of terrace house for sale in Rachel Gardens, Selly Oak, Birmingham, B29 — £255,000 • 3 bed • 1 bath • 788 ft²
3 bedroom terraced house for sale in North Road, Selly Oak, Birmingham, West Midlands, B29 — £390,000 • 3 bed • 2 bath • 786 ft²
3 bedroom end of terrace house for sale in Alwold Road, Selly Oak, B29 — £210,000 • 3 bed • 1 bath • 727 ft²


































































