YO30 6HQ - 3 bedroom town house for sale in Rowntree Avenue, York, YO30

View on Property Piper

3 bedroom town house for sale in Rowntree Avenue, York, YO30

Summary - 39 ROWNTREE AVENUE, YORK YO30 6HQ

3 bed 1 bath Town House

**Standout Features:**
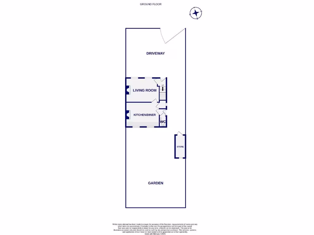
- Three bedrooms with ample space
- Ground floor WC and family bathroom
- Generous front and rear gardens
- Driveway parking for convenience
- Well maintained throughout, chain free sale
- Potential for further development (subject to planning)
- Sought-after location near York city center

**Concise Summary:**
Discover the charm of this well-presented end townhouse ideally located in Clifton, York. Perfect for families, investors, or commuters, this home boasts three comfortable bedrooms, a convenient ground floor WC, and a family bathroom. The inviting kitchen features ample storage and dining space, while the living room provides a cozy atmosphere with its vintage décor. Set on a generous plot, the property is complemented by front and rear gardens, ideal for relaxation or play. The exterior showcases a neatly paved driveway, providing off-street parking.

Offered with no onward chain, this property presents an excellent opportunity for new owners to personalize and potentially extend, enhancing both value and comfort. With close proximity to schools, amenities, and transport links, this home invites you to envision a fresh start. Don't miss out—schedule your viewing today, as opportunities like this won't last long!

Property Details

Brochure Descriptions

Image Descriptions

Floorplan Description

Rooms

Textual Property Features

Detected Visual Features

EPC Details

Nearby Schools

Nearest Bars And Restaurants

,,,,}

Nearest General Shops

,,}

Nearest Grocery shops

,,}

Nearest Supermarkets

,,}

Nearest Religious buildings

,,}

Nearest Medical buildings

,,,}

Nearest Airports

}

Nearest Leisure Facilities

,,,,}

Nearest Tourist attractions

,,}

Nearest Train stations

,,,,}

Nearest Bus stations and stops

,,,,}

Nearest Hotels

,,}

Tags

Local Market Stats

AirBnB Data

Similar Properties

Meta

High Res Images

Compatible Images

Low res Images

Thumbnails

Raw Images

High Res Floorplan Images

Compatible Floorplan Images

Low res Floorplan Images

FloorplanImages Thumbnail

Raw Floorplan Images