**Standout Features:**
- Two bedrooms, two bathrooms in a modern flat
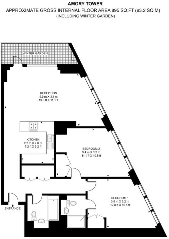
- Spacious 896 sq ft on the 38th floor with stunning river views
- Private balcony, perfect for relaxed evenings
- Exceptional amenities including a state-of-the-art gym, spa with heated pool, and exclusive residents’ lounge
- Conveniently located near South Quay DLR and the Jubilee Line
- Affluent area with excellent mobile signal and fast broadband speeds
**Potential Downsides:**
- High service charge of £6,600
- Elevated ground rent of £600
- High-crime area
Experience luxury living in the heart of London's vibrant E14 postcode with this striking two-bedroom, two-bathroom apartment in the prestigious Amory Tower. Spanning 896 sq ft and perched on the 38th floor, this residence features an expansive open layout filled with natural light, floor-to-ceiling windows, and a private balcony that overlooks the picturesque river.
Enjoy a lifestyle of comfort and convenience with unmatched amenities including a resort-style spa boasting a 12-metre heated pool, a modern gym, and an inviting residents' lounge. With South Quay DLR just 0.2 miles away and the Jubilee Line nearby, your commute to the West End, the City, and O2 Arena is seamless.
This property is ideal for professionals or families seeking a blend of urban sophistication and a cosmopolitan lifestyle. However, prospective buyers should consider the higher service charge and ground rent and the local crime rate. Act quickly to secure this stylish home with immense potential in one of London's most dynamic neighborhoods!
1 bedroom flat for sale in Marsh Wall London E14 — £600,000 • 1 bed • 1 bath • 570 ft²
2 bedroom apartment for sale in Amory Tower, Marsh Wall, Canary Wharf, E14 — £720,000 • 2 bed • 1 bath • 842 ft²
2 bedroom flat for sale in The Madison, E14 — £755,000 • 2 bed • 2 bath • 896 ft²
2 bedroom apartment for sale in Amory Tower, Marsh Wall, Canary Wharf, London, E14 — £754,000 • 2 bed • 2 bath • 815 ft²
1 bedroom apartment for sale in Amory Tower, Canary Wharf, London E14 — £550,000 • 1 bed • 1 bath • 575 ft²
1 bedroom flat for sale in Amory Tower, Marsh Wall E14 — £600,000 • 1 bed • 1 bath • 603 ft²






















































































