Two-bed leasehold flat with parking, garden and immediate rental income..
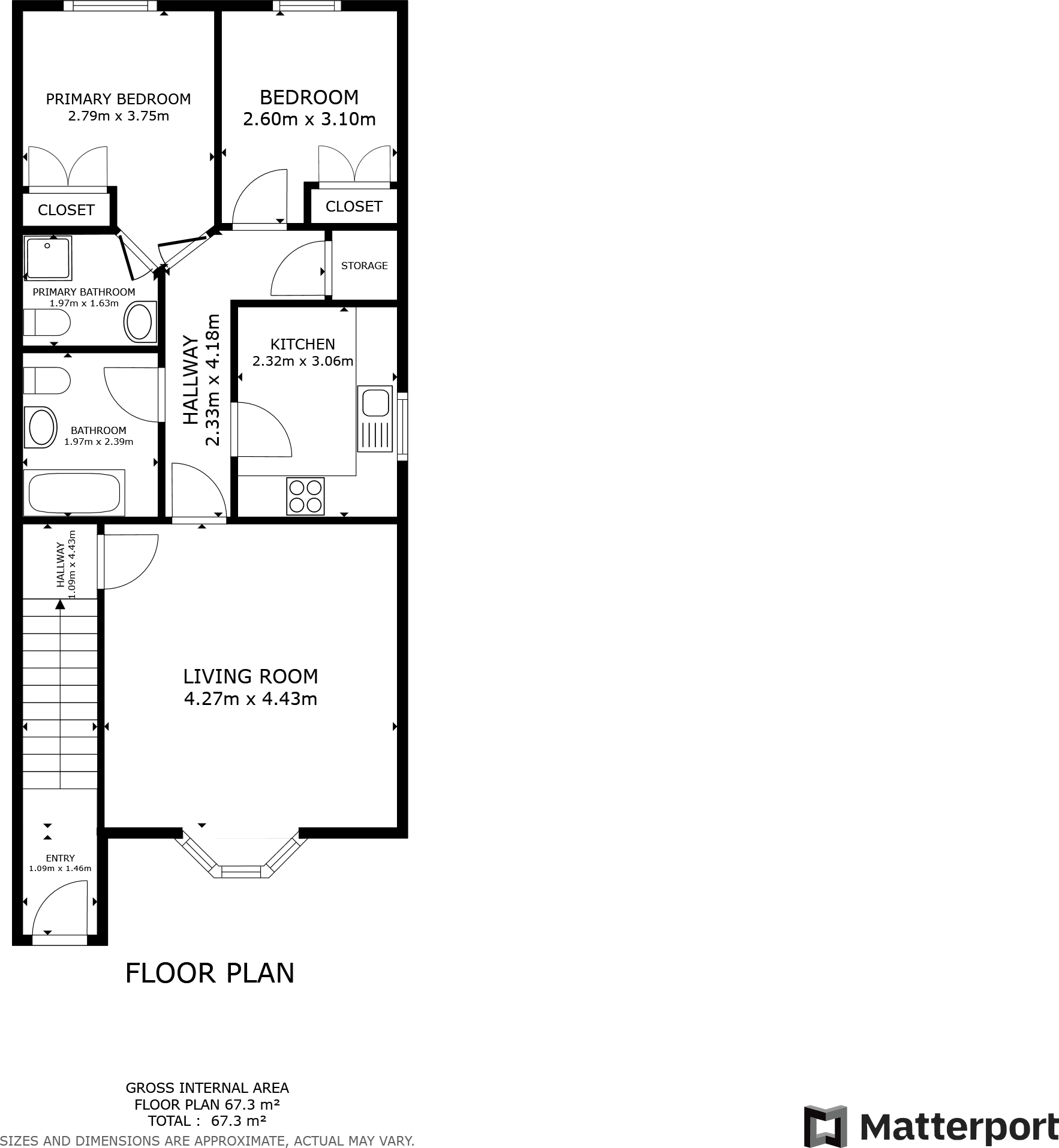
Two bedrooms and two bathrooms, practical 667 sq ft layout
A two-bedroom, two-bathroom leasehold flat on Jacobs Court, Wakefield, offering immediate rental income and clear investor appeal. The property includes private driveway parking, a rear garden and a practical 667 sq ft layout suitable for long-term lets or modest refurbishment.
Currently tenanted and generating £8,340 pa, this unit offers a gross yield of around 6.9% at the current asking price, making it attractive for buy-to-let portfolios or developers seeking steady income. The lease has 107 years remaining, and local connectivity is strong — fast broadband and excellent mobile signal support letting demand.
Buyers should note material drawbacks: the property sits in a wider area described as deprived with above-average crime, and the current tenancy means no vacant possession on completion. A buyer’s premium will be applied as part of the sale process. These factors affect letting strategy and management costs and should be weighed alongside rental returns.
Overall, this is a straightforward investment opportunity for an investor or portfolio manager prepared to accept an in-situ tenancy and factor in local area considerations. The flat’s private parking, garden and two-bathroom layout provide letting flexibility and appeal to a broad tenant market.
2 bedroom end of terrace house for sale in Newland Street, Wakefield, WF1 — £115,000 • 2 bed • 1 bath • 614 ft²
2 bedroom flat for sale in Waterside Way, Wakefield, WF1 — £110,000 • 2 bed • 2 bath • 700 ft²
1 bedroom flat for sale in Westfield Grove, Wakefield, WF1 — £67,000 • 1 bed • 1 bath
2 bedroom apartment for sale in Stanley Road, Wakefield, WF1 — £90,000 • 2 bed • 1 bath • 689 ft²
4 bedroom block of apartments for sale in Sharp Lane, Wakefield, WF3 — £345,000 • 4 bed • 3 bath
2 bedroom flat for sale in Hepworth, Woodlands Village, Wakefield, West Yorkshire, WF1 — £90,000 • 2 bed • 1 bath • 419 ft²














































