CF36 3SN - 3 bed spacious nottage semi in West Road, CF36 3SN

View on Property Piper

3 bedroom semi-detached house for sale in 47a West Road, Nottage Porthcawl CF36 3SN, CF36

Summary - 47A WEST ROAD NOTTAGE PORTHCAWL CF36 3SN

3 bed 2 bath Semi-Detached

Large family home near beaches and schools with garage and garden.
Three double bedrooms with built-in wardrobes in the main bedroom
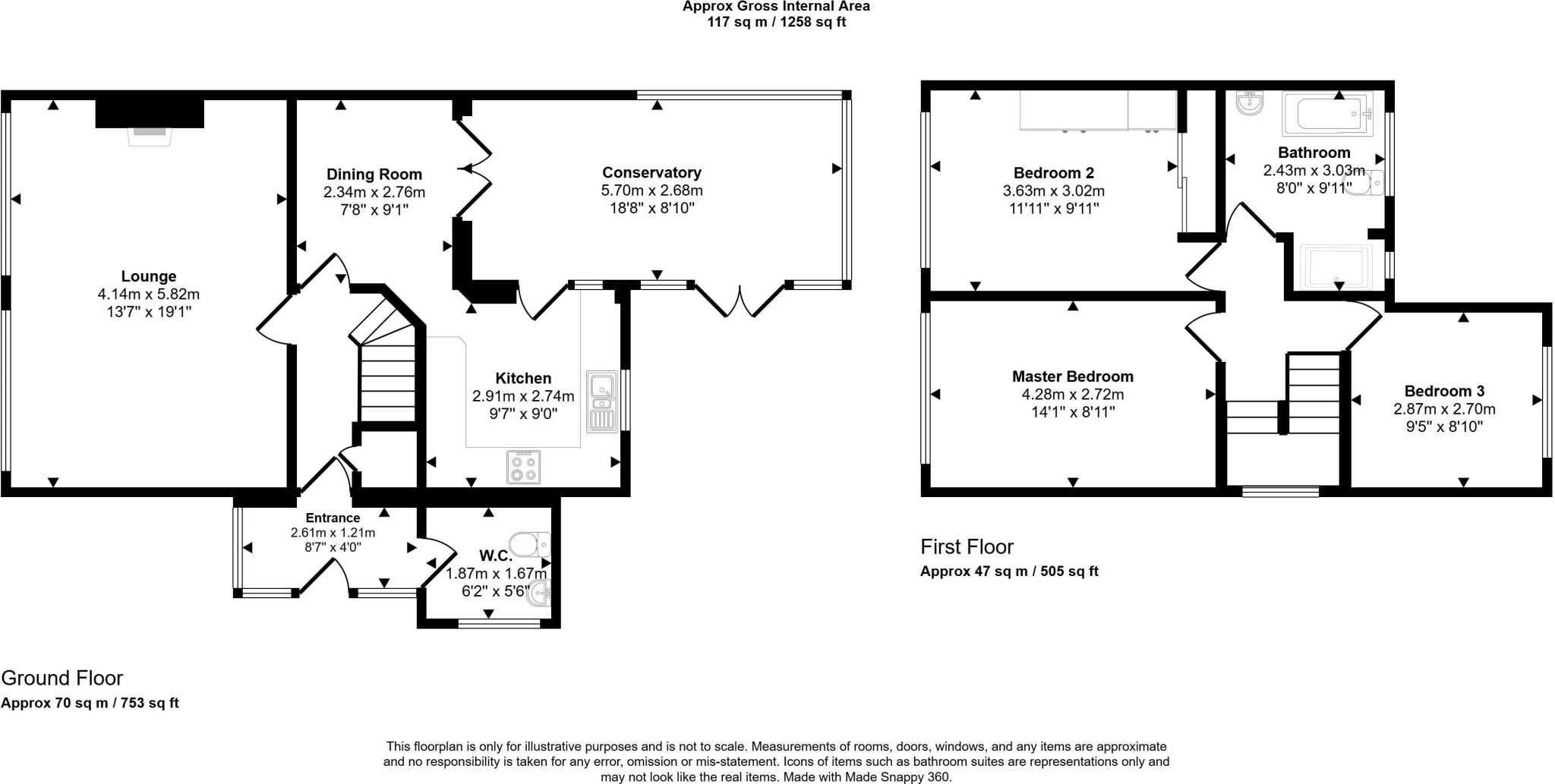
Set on a wider-than-average plot in sought-after Nottage, this three-bedroom semi-detached home offers generous living space and a private garden ideal for families. The property benefits from large reception rooms, a substantial conservatory that extends living space, off-road parking and a garage with adjoining storage — practical features for everyday family life and storage needs.

Internally the layout is well balanced: an impressive lounge, separate dining room opening to the conservatory, and a fitted kitchen on the ground floor, with three double bedrooms and a four-piece family bathroom upstairs. The house dates from the mid-20th century and retains period proportions, providing scope to personalise and modernise where desired.

Practical considerations are transparent: the home is chain free and connected to mains gas central heating, but the cavity walls are likely uninsulated (as built). The area shows signs of socio-economic deprivation locally, which may affect long-term resale in parts — however the location close to schools, shops, beaches and strong commuter links remains a consistent value-driver.

Viewings are recommended to appreciate the size of the plot, flexible reception rooms and the private outdoor space. Buyers seeking a spacious family home with potential to update in a popular coastal village will find this property compelling.

Property Details

Brochure Descriptions

Image Descriptions

Floorplan Description

Rooms

Textual Property Features

Target Audience

AI Tags

Detected Visual Features

EPC Details

Nearest Bars And Restaurants

,,,,}

Nearest General Shops

,,}

Nearest Grocery shops

,,}

Nearest Supermarkets

,,}

Nearest Religious buildings

,,}

Nearest Medical buildings

,,,}

Nearest Airports

}

Nearest Leisure Facilities

,,,,}

Nearest Tourist attractions

,,}

Nearest Train stations

,,,,}

Nearest Bus stations and stops

,,,,}

Nearest Hotels

,,}

Tags

Local Market Stats

AirBnB Data

Similar Properties

Meta

High Res Images

Compatible Images

Low res Images

Thumbnails

Raw Images

High Res Floorplan Images

Compatible Floorplan Images

Low res Floorplan Images

FloorplanImages Thumbnail

Raw Floorplan Images