**Notable Features:**
- Grade II listed, mixed-use four-story building
- Two retail units on lower and ground floors
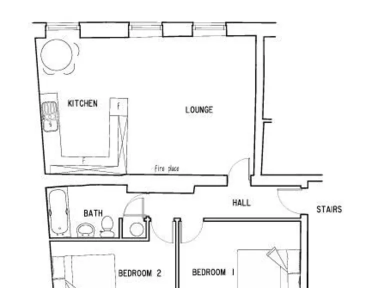
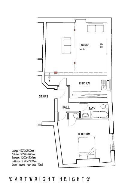
- Six residential apartments (5 one-bedroom, 1 two-bedroom)
- Total area of approximately 6,003 sq ft
- Freehold with potential for title splitting (up to 8 separate units)
- Current gross rental income of £61,908 per annum; projected to reach £64,939 by 2026
- Prime central location in Leek, Staffordshire
**Summary:**
Unlock the potential of this Grade II listed mixed-use investment in the heart of Leek, Staffordshire. Spanning an impressive 6,003 square feet, this substantial four-story building combines retail and residential spaces, featuring two retail units and six stylish apartments. Currently generating a solid annual rental income of £61,908, with forecasts indicating growth, this property boasts a reliable gross yield of 7.28% when fully let. This unique property, blending historic architectural appeal with modern amenities, offers investors an exceptional opportunity to increase value by potentially splitting title deeds, allowing for further rental or sale opportunities.
Located in a transitional neighborhood, the property benefits from high visibility and accessibility along Sheep Market, close to local amenities, schools, and a vibrant community. While the area experiences higher crime rates and some economic deprivation, it also showcases a wealth of local produce shops and cultural attractions, positioning it as a thriving retail hub for locals. Invest in this promising property today—opportunities like this don’t last long!
7 bedroom property for sale in Sheep Market, Leek, Staffordshire, ST13 5HN, ST13 — £850,000 • 7 bed • 6 bath • 6003 ft²
High street retail property for sale in 11 Market Place and 5 Derby Street, Leek, Staffordshire, ST13 — £200,000 • 1 bed • 1 bath • 1800 ft²
6 bedroom property for sale in Stockwell Street, Leek, ST13 — £475,000 • 6 bed • 6 bath • 539 ft²
5 bedroom property for sale in Stockwell Street, Leek, ST13 — £425,000 • 5 bed • 5 bath
4 bedroom mixed use property for sale in Ball Haye Street, Leek, ST13 — £165,000 • 4 bed • 1 bath • 1782 ft²
High street retail property for sale in 24 Derby Street, Leek, Staffordshire, ST13 — £430,000 • 1 bed • 1 bath • 7205 ft²


























































































































































































































































