**Standout Features:**
- **Commercial Freehold Site**: Offers three business opportunities and current income of £22,180, with potential surpassing £45,000.
- **Variety of Income Sources**: Includes a restaurant (currently unoccupied), Vodaphone mast rental, and a hand car wash with a renewed lease.
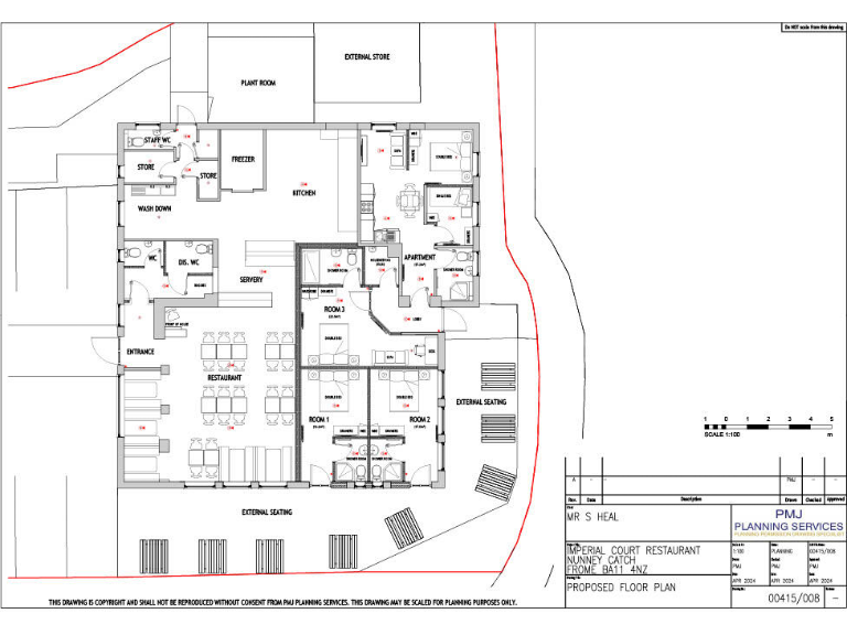
- **Planning Permission**: Approved changes for part residential use, allowing for one flat and three short-stay rooms.
- **Prime Location**: Situated on a busy main road (A361) just outside Frome, ensuring high visibility and foot traffic.
- **Generous Property Size**: Over 2,474 square feet on a substantial plot, providing ample space for various business operations.
**Summary:**
Explore this unique opportunity to acquire a valuable commercial freehold in BA11, perfect for savvy investors or business owners looking to capitalize on multiple revenue streams. The property currently houses two actively trading businesses, with an established annual income of £22,180 and a strong potential to reach beyond £45,000. The well-presented restaurant space—complete with a fully equipped kitchen and planning permission for mixed use—provides an excellent canvas for further development, aiming for substantial rental earnings of approximately £24,000 per year once operational.
Situated in a bustling spot on the A361, this property benefits from high visibility and off-street parking, making it an attractive choice for customers. A reliable rental income from an existing Vodaphone mast lease and a hand car wash further enhance this property's investment appeal.
However, potential buyers should note that while the restaurant space requires tenant fit-out, its strategic location and mixed-use flexibility promise significant future potential. Don’t miss the chance to secure this commercial gem—your next lucrative investment awaits!
Commercial property for sale in King Street, Frome, BA11 — £250,000 • 1 bed • 1 bath • 1872 ft²
Light industrial facility for sale in Unit 4, Handlemaker Road, Frome, BA11 4RW, BA11 — £800,000 • 1 bed • 1 bath • 10325 ft²
Commercial property for sale in 145 High Street, Street, BA16 0EX, BA16 — £215,000 • 1 bed • 1 bath • 1500 ft²
Commercial property for sale in Evercreech, Shepton Mallet, BA4 — £240,000 • 2 bed • 1 bath • 2274 ft²
2 bedroom mixed use property for sale in Dye Lane, Oakhill, Radstock, BA3 — £200,000 • 2 bed • 1 bath
Ground floor studio flat for sale in 45 & 45a High Street, Wincanton, Somerset, BA9 — £180,000 • 1 bed • 1 bath • 932 ft²














































































































