Low-maintenance two-bedroom new-build, walkable to Bury St Edmunds town centre.
Allocated off-street parking included
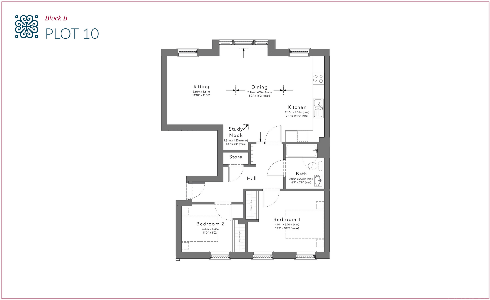
A bright two-bedroom new-build apartment in Abbots Gate offers low-maintenance, high-spec living close to Bury St Edmunds town centre. The development features underfloor heating throughout, a fitted kitchen with appliances and allocated off-street parking — practical benefits for downsizers seeking comfort and convenience.
The apartment sits within a Georgian-revival, multi-storey block of 66 homes and comes with a 999-year lease and a 10-year ICW guarantee for new-build cover. At about 813 sq ft, the layout includes an open-plan living/kitchen/dining area, study nook, two bedrooms and a single bathroom — roomy for two and efficient for weekly upkeep.
This home also presents straightforward investment potential: census rental estimates suggest achievable rents for two-bed units, and the town-centre location is walkable to shops, parks and transport links. Buy-to-let buyers should note the leasehold tenure, an annual service charge of £989.58 (below average), and that the area records above-average crime — factor these into running-cost and management plans.
Overall, the property is best suited to downsizers or couples wanting modern, low-maintenance living close to amenities. The specification and long lease give peace of mind, while purchasers wanting very large rooms or a rural setting may prefer alternatives.
2 bedroom apartment for sale in Abbots Gate, Bury St Edmunds, IP33 — £270,000 • 2 bed • 2 bath • 818 ft²
2 bedroom apartment for sale in Abbots Gate, Bury St Edmunds, IP33 — £299,000 • 2 bed • 2 bath • 848 ft²
2 bedroom apartment for sale in Abbots Gate, Laundry Lane, Bury St Edmunds, Suffolk, IP33 — £265,000 • 2 bed • 1 bath • 616 ft²
2 bedroom apartment for sale in Plot 28 Abbots Gate, Bury St Edmunds, Suffolk, IP33 — £265,000 • 2 bed • 1 bath • 738 ft²
2 bedroom apartment for sale in Abbots Gate, Bury St Edmunds, IP33 — £259,000 • 2 bed • 1 bath • 727 ft²
2 bedroom apartment for sale in Abbots Gate, Bury St Edmunds, IP33 — £275,000 • 2 bed • 2 bath • 814 ft²






























































