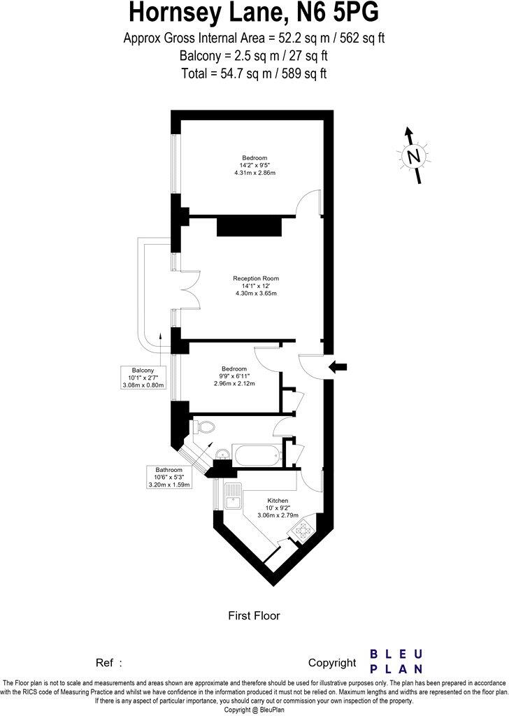
First-floor two-bedroom flat with balcony and garden outlook
Set on the first floor of a 1930s block within the Highgate Conservation Area, this two-bedroom flat offers bright, well-proportioned rooms and a private balcony overlooking well-kept communal gardens. Large windows and a 14'1 x 12' reception deliver abundant natural light and a pleasant mid-century character, while a fully fitted kitchen and three-piece bathroom keep the layout straightforward for everyday living.
Practical running costs are clear: a long lease (to 2191) and communal heating with individual heat interface units give independent control of heating and hot water. Residents benefit from off-street permit parking, fast broadband availability, low local crime and excellent mobile signal — useful for commuters and home-workers alike. Local amenities, Waterlow Park and Highgate Village are all within easy reach, with Highgate and Archway stations nearby.
Notable costs and covenants are important to consider. The service charge is relatively high at £3,828.60 per year (covers heating, hot water, insurance, grounds maintenance, cleaning and management). The flat is leasehold with restrictions: sub-letting requires freeholder consent, no pets without written permission and floors must be carpeted in most rooms. The property is small at approximately 562 sq ft, so storage and space are limited compared with larger family homes.
Overall this is a well-presented, characterful apartment suited to first-time buyers or professional couples seeking a light-filled, low-maintenance home in an affluent, well-connected pocket of North London. Buyers needing more space, regular rental flexibility or pet ownership should review the lease covenants and service charge implications before proceeding.
2 bedroom apartment for sale in Hornsey Lane, Highgate, N6 — £475,000 • 2 bed • 1 bath • 700 ft²
2 bedroom apartment for sale in Southwood Heights, Southwood Lawn Road, London, N6 — £785,000 • 2 bed • 1 bath • 873 ft²
2 bedroom apartment for sale in Northwood Hall, Hornsey Lane, Highgate, N6 — £475,000 • 2 bed • 1 bath • 584 ft²
2 bedroom flat for sale in Archway Road, Highgate, N6 — £845,000 • 2 bed • 1 bath • 1096 ft²
1 bedroom apartment for sale in Northwood Hall, Hornsey Lane, London, N6 — £375,000 • 1 bed • 1 bath • 484 ft²
2 bedroom apartment for sale in Milton Road, London, N6 — £595,000 • 2 bed • 1 bath • 644 ft²


































































