Large 2-bed terrace with outbuilding and extension potential in South Downs park.
Two well-proportioned double bedrooms
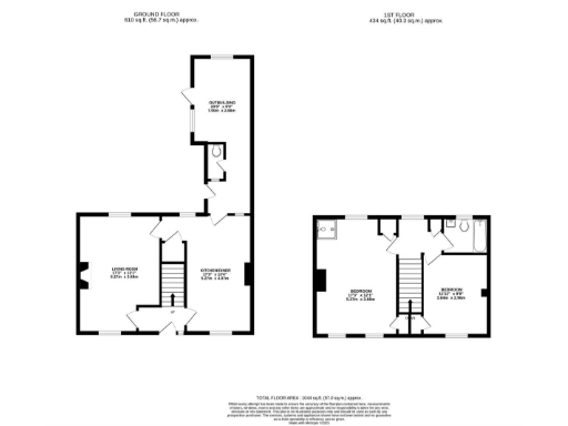
A large, characterful two-bedroom terraced house in sought-after Easebourne, set within the South Downs National Park. The home offers generous rooms, a comfortable sitting room with a gas fireplace, and mature, well-maintained gardens with private parking for two cars plus additional residents’ spaces. Occupying a decent plot, the property includes a substantial attached outbuilding and external WC that present clear scope to add living space, subject to planning.
This is a genuine renovation opportunity: much of the interior décor and finishes are dated and the house requires updating. Practical positives include double glazing (installed post-2002), mains gas central heating, and an EPC rating of C, but the cavity walls are assumed to have no insulation and the property will benefit from modernisation throughout. Broadband speeds are slow in the area, which may affect home-working needs.
The location will particularly appeal to families and buyers seeking village-fringe life: Easebourne Primary and outstanding Midhurst Rother College are within walking distance, and local amenities, sports facilities and public transport are nearby. With no onward chain and room to extend (STPP), this home suits a buyer wanting to add value and create a contemporary family home while retaining period charm. Note practical considerations: renovation costs, likely wall insulation work, and slow broadband should be factored into plans.
3 bedroom terraced house for sale in Cowdray Road, Easebourne, GU29 — £450,000 • 3 bed • 1 bath • 1070 ft²
3 bedroom bungalow for sale in Wheelbarrow Castle, Easebourne, Midhurst, West Sussex, GU29 — £375,000 • 3 bed • 1 bath • 804 ft²
2 bedroom semi-detached house for sale in Egmont Road, Easebourne, GU29 — £465,000 • 2 bed • 1 bath • 978 ft²
3 bedroom semi-detached house for sale in Easebourne Street, Easebourne, Midhurst, West Sussex, GU29 — £499,000 • 3 bed • 2 bath • 770 ft²
2 bedroom end of terrace house for sale in Lutener Road, Easebourne, Midhurst, GU29 9AT, GU29 — £415,000 • 2 bed • 2 bath • 777 ft²
2 bedroom semi-detached house for sale in Heathfield Gardens, Midhurst, GU29 — £300,000 • 2 bed • 1 bath • 818 ft²


























































