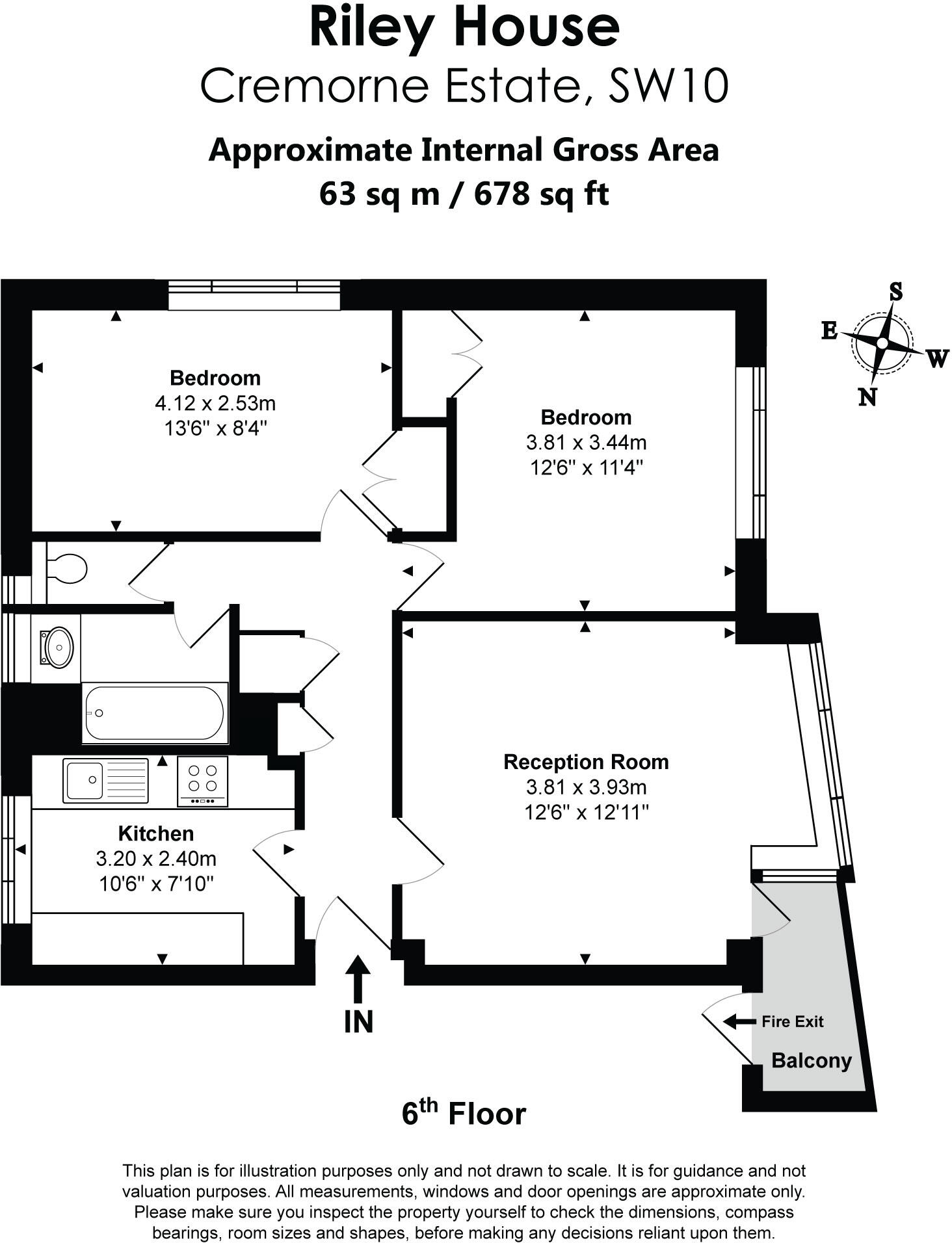
**Standout Features:**
- Bright 2-bedroom apartment on the 6th floor with lift access
- Private balcony off the reception room
- Spacious separate kitchen
- Well-located near shops, restaurants, and transport links
- Leasehold with approximately 88 years remaining
- Chain-free sale for a smooth purchase process
- Potential renovation opportunity to modernize the interior
**Concise Summary:**
Discover a bright two-bedroom apartment located on the 6th floor of a mid-20th century purpose-built block, measuring nearly 700 square feet. This space features a welcoming reception room with direct access to a private balcony, two generously sized bedrooms, a separate kitchen, and a bathroom with a convenient separate W/C. Nestled in the vibrant Kensington area, you will have the bustling shops and restaurants of Kings Road just moments away, complemented by excellent transport links, including Gloucester Road and South Kensington tube stations within a mile.
With a leasehold of approximately 88 years remaining and offered chain-free, this property is a prime opportunity for first-time buyers or investors looking for a property they can customize. While the apartment is generally well-sized and filled with natural light, it does require some modernization. The service charge is above average at £4,500, but the significant potential for renovation and the thriving local community can make this a worthwhile investment. Don’t miss out on making this bright, urban retreat your own!
2 bedroom apartment for sale in Edith Terrace, Chelsea , SW10 — £520,000 • 2 bed • 1 bath • 780 ft²
2 bedroom apartment for sale in Fulham Road, Chelsea, SW10 — £695,000 • 2 bed • 1 bath • 792 ft²
1 bedroom flat for sale in Kings Court South, Chelsea Manor Gardens, Chelsea, London, SW3 — £649,000 • 1 bed • 1 bath • 555 ft²
2 bedroom apartment for sale in Kensington Mansions, Warwick Road, London, SW5 — £650,000 • 2 bed • 1 bath • 706 ft²
2 bedroom apartment for sale in Elm Park Road, London, SW3 — £995,000 • 2 bed • 1 bath • 741 ft²
2 bedroom apartment for sale in Kings Road, Chelsea, SW3 — £650,000 • 2 bed • 1 bath • 688 ft²














































