Character-filled two-bed with modern extension and off-street parking.
Large open-plan kitchen/living with bi-fold doors and skylight
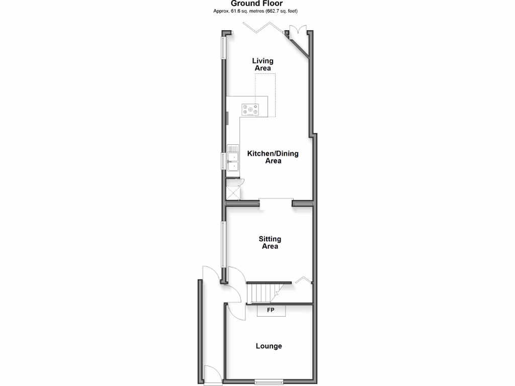
This attractive 1930s semi-detached home sits in a quiet South Park pocket of Reigate, recently extended and renovated to a high standard. The heart of the house is a large open-plan kitchen/living area with skylight and bi-fold doors that create a seamless indoor-outdoor flow to a sunny, low-maintenance rear garden — an ideal family social hub.
The property offers two double bedrooms, a fitted bathroom and separate sitting and lounge spaces, providing flexible living for parents, children or home working. Built-in kitchen appliances and retained period features such as fireplaces and exposed brickwork give character alongside contemporary finishes.
There is off-street parking to the front and scope to add further accommodation via a loft conversion or extension, subject to planning consent (previous consent for an extra bedroom with shower has lapsed). Buyers should note the plot is small and the property has cavity walls assumed to lack insulation, so further energy-efficiency improvements may be needed.
Well-placed for local schools, parks and transport links, this well-presented home suits growing families seeking character, modern convenience and potential to increase space with the right permissions.
2 bedroom semi-detached house for sale in Sandcross Lane, Reigate, Surrey, RH2 — £490,000 • 2 bed • 1 bath • 862 ft²
3 bedroom semi-detached house for sale in Ashdown Road, Reigate, Surrey, RH2 — £475,000 • 3 bed • 1 bath • 883 ft²
3 bedroom semi-detached house for sale in Hartswood Avenue, REIGATE, Surrey, RH2 — £500,000 • 3 bed • 2 bath • 1051 ft²
2 bedroom semi-detached house for sale in Eastnor Road, Reigate, RH2 8NE, RH2 — £500,000 • 2 bed • 1 bath • 903 ft²
3 bedroom semi-detached house for sale in New North Road, Reigate, RH2 — £600,000 • 3 bed • 1 bath • 1013 ft²
3 bedroom semi-detached house for sale in Rushetts Road, Reigate, Surrey, RH2 — £465,000 • 3 bed • 1 bath • 692 ft²


























































































