Light-filled rooms, large garden and garage in popular coastal neighbourhood.
Detached three-bedroom family home with distant sea views
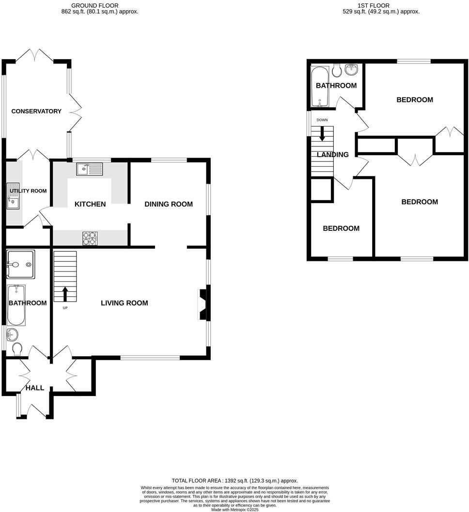
This detached three-bedroom home on Alexandra Road offers generous, family-friendly living across spacious rooms and a large garden. The lounge and separate dining room create flexible living and entertaining space, while the sunroom brings extra light and direct garden access. Distant sea views toward Godrevy Lighthouse add a coastal appeal without the flood risk.
Practical features include a fitted kitchen with adjoining utility and pantry, two bathrooms, ample off-street parking and a single garage with mezzanine storage. The plot size and layout give scope for garden landscaping or modest extension (subject to consents), making the house suitable for growing families or buyers seeking space near the coast.
Buyers should note a recent non-coal mining search flagged the need for further investigation; the vendor is pursuing this and results will be updated. The property is chain-free and freehold, presented in a predominantly well-maintained 1980s style but some buyers may want cosmetic updating to reflect modern tastes.
Overall this home suits families looking for room to spread out in a quiet, popular St Ives neighbourhood with good mobile coverage, reasonable energy efficiency (EPC C) and easy access to local schools, shops and the seafront.
3 bedroom end of terrace house for sale in Alexandra Row, St. Ives, Cornwall, TR26 — £360,000 • 3 bed • 1 bath • 829 ft²
3 bedroom detached house for sale in Menhyr Drive, Carbis Bay, St. Ives, Cornwall, TR26 — £735,000 • 3 bed • 2 bath • 1727 ft²
5 bedroom detached house for sale in Burthallan Lane, St. Ives, TR26 — £1,399,500 • 5 bed • 3 bath • 2200 ft²
4 bedroom semi-detached house for sale in Stunning home with an independent annexe, St Ives, TR26 — £495,000 • 4 bed • 2 bath • 1198 ft²
4 bedroom detached house for sale in Higher Tregenna Road, St Ives, Cornwall , TR26 — £799,995 • 4 bed • 2 bath • 1652 ft²
5 bedroom detached house for sale in St Ives, Cornwall, TR26 — £899,950 • 5 bed • 4 bath • 2046 ft²










































































































































