Chain-free one-bed with concierge, gym and fast links to Canary Wharf.
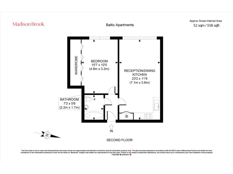
558 sq ft of internal space; bright, open-plan living
Bright, contemporary one-bedroom apartment in Baltic Apartments, set within Capital East Phase 1 and offered chain-free. The open-plan reception with full-height windows and integrated kitchen creates a generous social space, while the bedroom’s full-width built-in wardrobe adds practical storage. Residents benefit from a 24-hour concierge, on-site gym and sauna, and pleasant views over landscaped communal gardens.
Practical details suit first-time buyers or buy-to-let investors: a long lease (134 years), very low flood and crime risk, fast broadband and excellent mobile signal. Transport is a major plus — Custom House DLR and the Elizabeth Line are within easy walking distance, giving quick links to Canary Wharf and central London.
Be clear on ongoing costs and heating: the service charge is above average at £5,134pa and there is a small ground rent of £200pa. Main heating is electric via room heaters rather than a communal central system, which can affect running costs. There’s no private outdoor space and the glazing install date is unknown.
Overall this is a well-presented, low-risk urban one-bed with strong transport and amenity credentials. It will suit a buyer seeking convenience, contemporary living and easy access to Canary Wharf, or an investor targeting steady rental demand in a well-served inner-city location.
1 bedroom apartment for sale in Baltic Apartments, Royal Victoria Dock, E16 — £270,000 • 1 bed • 1 bath • 542 ft²
2 bedroom apartment for sale in Baltic Apartments, Royal Victoria Dock, E16 — £440,000 • 2 bed • 1 bath • 692 ft²
1 bedroom apartment for sale in Western Gateway, LONDON, E16 — £299,995 • 1 bed • 1 bath • 550 ft²
1 bedroom apartment for sale in Adriatic Apartments, Royal Victoria Dock, E16 — £300,000 • 1 bed • 1 bath • 426 ft²
1 bedroom flat for sale in Western Gateway, Royal Docks, London, E16 — £350,000 • 1 bed • 1 bath • 558 ft²
1 bedroom flat for sale in Atlantis Avenue, Gallions Reach, London E14, E16 — £325,000 • 1 bed • 1 bath • 582 ft²






































