Two patios, parking and easy access to Battersea Square and transport links.
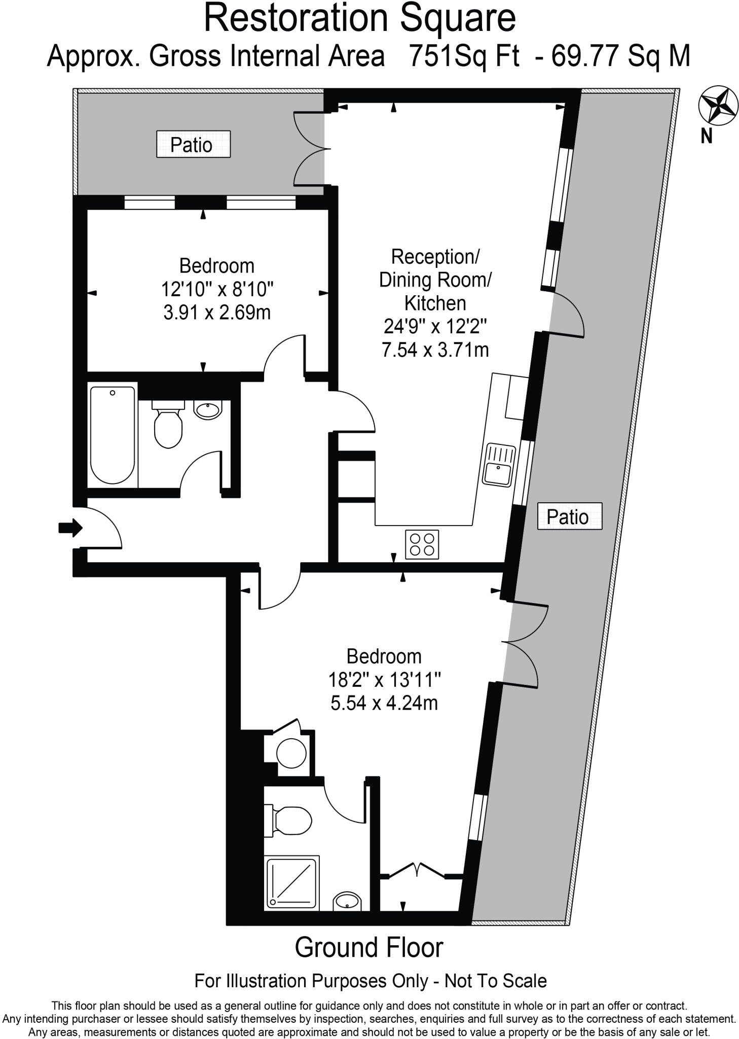
Ground-floor two-bedroom, two-bathroom apartment (approx. 760 sq ft)
A bright ground-floor two-bedroom apartment arranged around a generous open-plan living, dining and kitchen area that opens onto two private patio spaces. The principal bedroom includes an en-suite shower and built-in storage; a second double and family bathroom complete the accommodation across about 760 sq ft. Two outdoor areas and off-street parking are uncommon extras for central Battersea and add practical everyday value.
Set in Restoration Square close to Battersea Square, the flat is well placed for cafés, restaurants and local shops, with Clapham Junction and bus routes about 0.7 miles away for links into central London. Nearby schooling options include both highly regarded independent and good-rated state schools, making the location suited to families seeking convenient urban amenities.
Mechanicals are conventional and straightforward: mains gas boiler and radiators, cavity walls (assumed insulated) and double glazing (install date unknown). The EPC is C. The property is freehold which simplifies ownership compared with leasehold flats, but note the annual service charge of £4,320 is above average and there is a recorded above-average local crime rate — both material factors for buyers to consider.
This is a practical, well-presented apartment offering outdoor space and parking in a highly desirable Battersea pocket. It will suit a family or professional couple who prioritise location, outside space on the ground floor and straightforward, low-risk maintenance rather than a completely refurbished show-home.
2 bedroom flat for sale in Battersea High Road, London, SW11 — £675,000 • 2 bed • 2 bath • 807 ft²
2 bedroom apartment for sale in Restoration Square, London, SW11 — £650,000 • 2 bed • 2 bath • 800 ft²
2 bedroom flat for sale in Battersea High Road, London, SW11 — £650,000 • 2 bed • 2 bath • 733 ft²
2 bedroom flat for sale in Battersea High Road, London, SW11 — £585,000 • 2 bed • 2 bath • 733 ft²
3 bedroom flat for sale in Battersea High Road, London, SW11 — £795,000 • 3 bed • 2 bath • 917 ft²
2 bedroom apartment for sale in Windsor Court, Vicarage Crescent, London, SW11 — £800,000 • 2 bed • 2 bath • 952 ft²






























































