**Standout Features:**
- Grade II listed farmhouse with unique character
- 1.57-acre landscaped grounds with formal gardens and water features
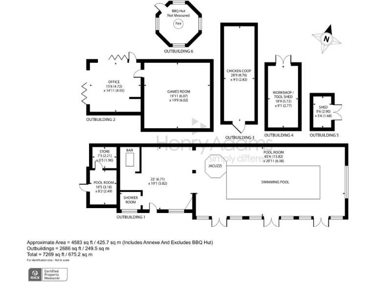
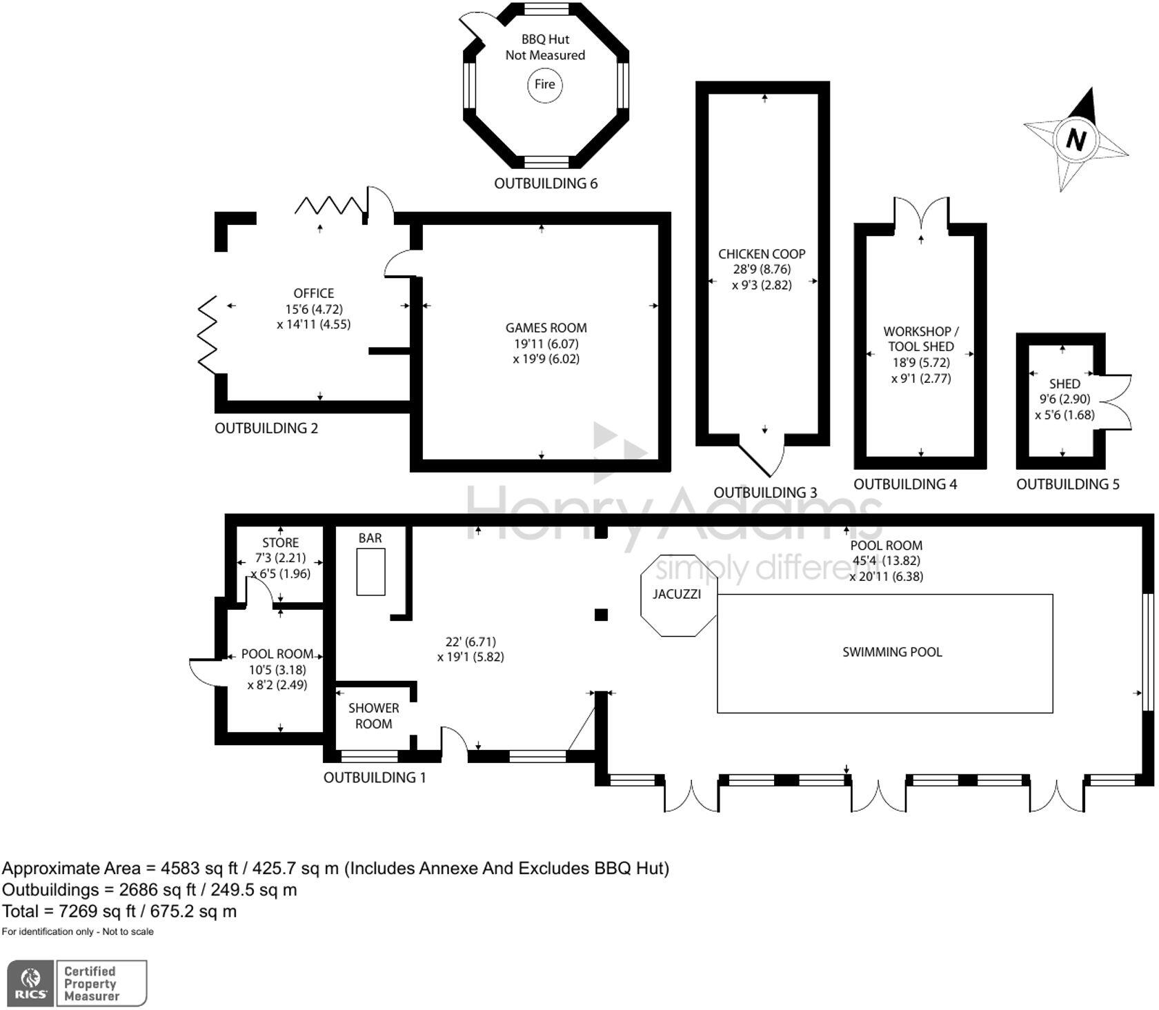
- Impressive detached pool house featuring a bar, wine cellar, heated pool, and jacuzzi
- Self-contained two-story cottage perfect for guests or rental potential
- Versatile home office and soundproofed games room
- Modern upgrades including high-speed networking throughout
**Potential Concerns:**
- Listed status may present renovation challenges
- Built in 1850 with solid brick construction and no defined insulation
- Average mobile signal; council tax considered expensive
Nestled just outside the charming village of Wisborough Green, Hazelhurst Farm is a stunning Grade II listed farmhouse offering an ideal blend of historical charm and modern luxury. Spanning a generous 7,269 square feet, this spacious home features a warm family room, expansive sitting area with a cozy inglenook fireplace, and a bespoke kitchen with a dual-fuel AGA. Bi-fold doors extend your living space to the beautifully landscaped outdoor area, making it perfect for entertaining.
The property boasts a remarkable pool house that transforms your lifestyle with its heated swimming pool, spa, and entertainment bar—ideal for summer gatherings or year-round relaxation. With accommodation for guests in a separate two-storey cottage and a potential generating income opportunity from seasonal rentals or Airbnb, this home offers flexibility for families or investors alike.
The picturesque gardens include unique features such as ponds, a BBQ hut, and lush play areas for children, while smart irrigation systems ensure easy maintenance. Located in a peaceful yet accessible area, Hazelhurst Farm provides an exceptional quality of life amidst rich countryside, with an impressive school district to boot. This exquisite property is a rare find—come envision your new chapter here before it slips away.
6 bedroom detached house for sale in Lyons Road, Slinfold, Horsham, West Sussex, RH13 — £2,250,000 • 6 bed • 4 bath • 3521 ft²
Equestrian facility for sale in Skiff Lane, Wisborough Green, Billingshurst, West Sussex, RH14 — £4,250,000 • 7 bed • 4 bath • 14401 ft²
4 bedroom detached house for sale in Skiff Lane, Wisborough Green, Billingshurst, RH14 — £1,500,000 • 4 bed • 3 bath • 2238 ft²
7 bedroom detached house for sale in Coates, Fittleworth, Pulborough, West Sussex, RH20 — £2,550,000 • 7 bed • 5 bath • 5709 ft²
5 bedroom detached house for sale in Skiff Lane, Wisborough Green, RH14 — £2,350,000 • 5 bed • 3 bath • 5301 ft²
6 bedroom detached house for sale in Saucelands Lane, Shipley, Horsham, West Sussex, RH13 — £3,500,000 • 6 bed • 1 bath • 6040 ft²










































































































































































































































