Estate-scale family home with pool, gym and exceptional privacy.
- Award-winning developer build with high-end finishes throughout
- Approximately 0.63-acre elevated, heavily wooded plot for privacy
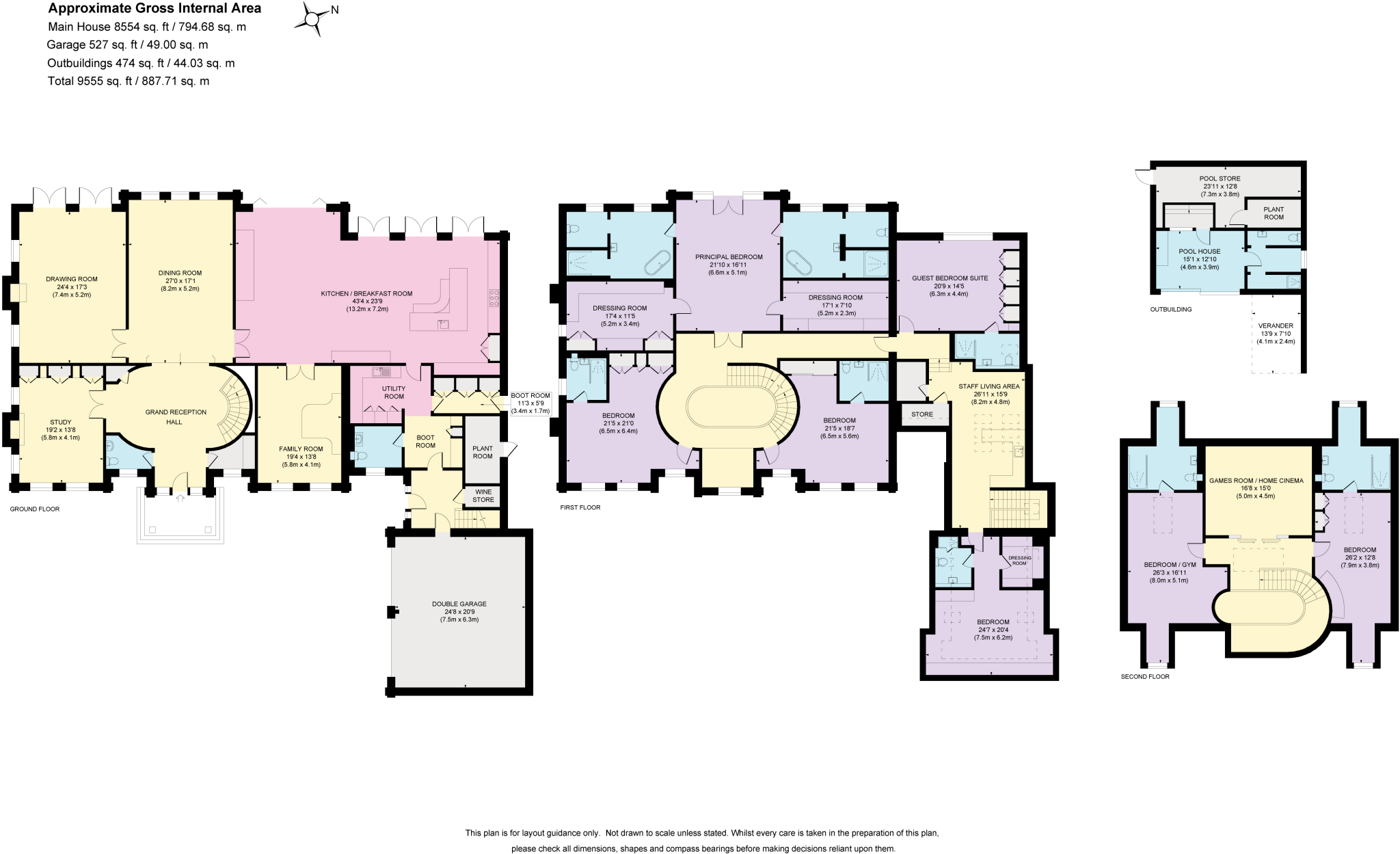
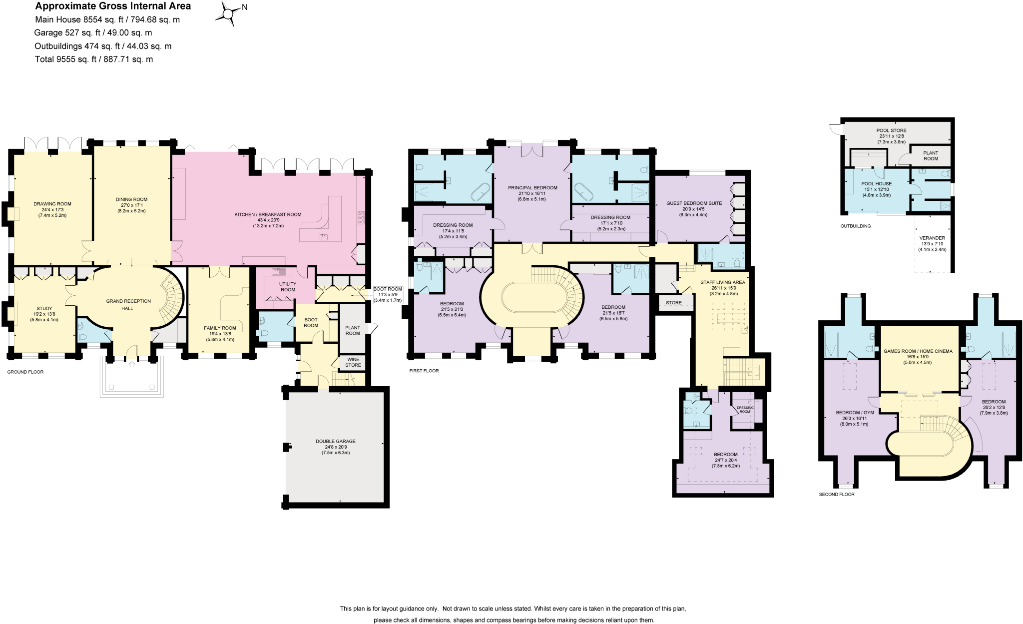
- Extremely large footprint: c. 9,555 sq ft, about 33 rooms
- Leisure suite: pool, pool house with sauna, gym and cinema room
- Principal suite with his-and-hers dressing rooms and marble bathrooms
- Substantial staff/secondary accommodation and multi-bay garage
- Excellent transport links; short walk to Oxshott station, easy A3 access
- Very high running costs and very expensive council tax
Set within the private Crown Estate in Oxshott, this substantial red-brick mansion occupies around 0.63 acres of mature, heavily wooded grounds. Constructed by a noted private developer and winner of a Best Residential Property award, the house offers lavish principal and guest suites, extensive reception space and purpose-built leisure facilities including an outdoor pool, pool house with sauna, and gym. The elevated plot and electric gated approach provide strong privacy and a commanding presence on one of the area's most sought-after roads.
Internally the house is arranged over multiple floors with high ceilings, a grand entrance hall and sweeping staircase, a large open-plan kitchen/family area opening to terraces, formal dining and reception rooms, study, cinema/media room and substantial service accommodation including staff quarters and extensive utility space. Ducted air conditioning serves the principal suite, several guest suites and key leisure rooms. The property includes a large multi-bay garage and generous parking on a resin-bond carriage driveway.
Location is a major asset: short walk to Oxshott station (fast direct trains to London), easy access to the A3 and M25, and close to many top independent and state schools. Nearby leisure options include high-quality golf clubs, polo and countryside pursuits, with convenient access to Heathrow and Gatwick. Local shops, restaurants and premium dining are within a short drive.
Potential buyers should note the property's scale and specification bring proportionately high running and upkeep costs, and council tax is very expensive. The house is offered freehold, with excellent broadband and mobile coverage and low flood and crime risk. For families or those seeking an executive country residence with comprehensive leisure and staff accommodation, this home delivers rare space, privacy and convenience in a prime Surrey setting.
6 bedroom detached house for sale in Leys Road, Oxshott, Leatherhead, Surrey, KT22 — £5,500,000 • 6 bed • 8 bath • 9530 ft²
7 bedroom detached house for sale in Leys Road, Oxshott, Leatherhead, Surrey, KT22 — £7,950,000 • 7 bed • 8 bath • 12991 ft²
6 bedroom detached house for sale in Kings Warren, Leatherhead, KT22 — £4,500,000 • 6 bed • 6 bath • 9448 ft²
7 bedroom detached house for sale in Queens Drive, Oxshott, Surrey, KT22 — £5,300,000 • 7 bed • 7 bath • 10897 ft²
6 bedroom detached house for sale in Highfield Close, Oxshott, KT22 — £3,750,000 • 6 bed • 5 bath • 5442 ft²
5 bedroom detached house for sale in Fairoak Lane, Oxshott, Leatherhead, Surrey, KT22., KT22 — £2,250,000 • 5 bed • 5 bath • 4422 ft²


































































































































































































































































































































