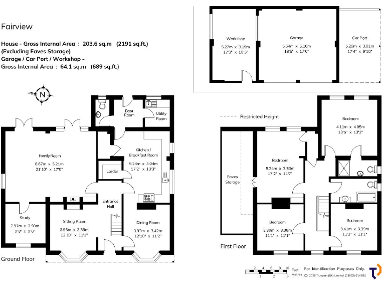
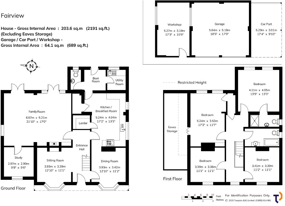
**Standout Features:**
- Attractive detached family home dating from 1911 with later enhancements
- Four spacious double bedrooms, including a principal bedroom with ensuite
- Three inviting reception rooms and a dedicated study for work or leisure
- Expansive kitchen/breakfast room with a larder and boot room
- Beautifully maintained grounds of approximately 1 acre, perfect for families
- Large double garage, car port, and workshop for ample storage or hobby space
- Set in a peaceful hamlet, ideal for countryside living while remaining accessible to amenities
Located in the serene hamlet of Claygate, this stunning detached family home blends classic charm with modern comforts. Immaculately presented, the property offers a generous 2,191 square feet of living space that is perfect for families looking for both privacy and community. With three well-appointed reception areas and a bright, inviting kitchen/breakfast room, entertaining and daily life are made effortless. The expansive grounds, featuring lush greenery and mature trees, create a tranquil outdoor oasis suitable for relaxation or play.
This property is ideally situated near renowned schools, including Bethany and Benenden School, making it a perfect choice for families. Quick access to mainline rail services from Paddock Wood ensures easy commuting options. While the council tax band is expensive, the exclusivity and tranquil environment offered by this beautiful home in an affluent area make it an attractive investment. Don’t miss this opportunity; properties of this caliber in such a desirable location are rare and likely to attract significant interest.
4 bedroom detached house for sale in Pagehurst Road, Marden Thorn , TN12 — £1,050,000 • 4 bed • 2 bath • 2630 ft²
4 bedroom detached house for sale in Ramsden Way, Marden, Tonbridge, TN12 — £520,000 • 4 bed • 2 bath • 1267 ft²
5 bedroom detached house for sale in Beechwood Close, East Peckham, TN12 — £875,000 • 5 bed • 3 bath • 3150 ft²
5 bedroom detached house for sale in Cherry Orchard Cottage, Chartham, CT4 — £875,000 • 5 bed • 3 bath • 2500 ft²
4 bedroom detached house for sale in Vauxhall Lane, Tunbridge Wells, TN4 — £1,625,000 • 4 bed • 2 bath • 2853 ft²
4 bedroom detached house for sale in Pioneer Avenue, Marden, TN12 — £875,000 • 4 bed • 3 bath • 2462 ft²


































































































