**Key Features:**
- Elegant Georgian-style semi-detached home
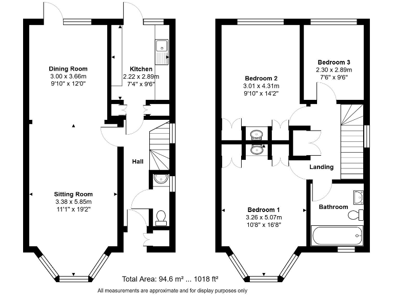
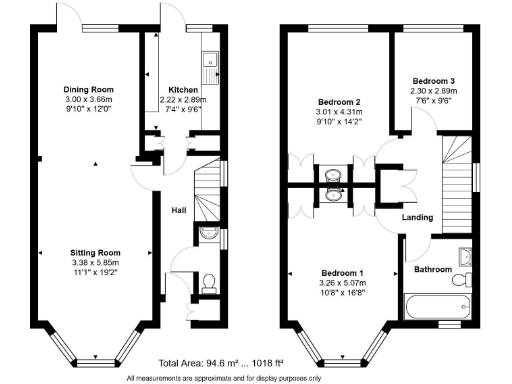
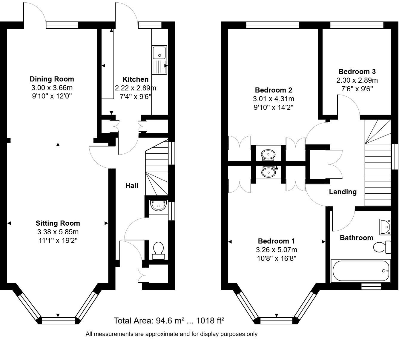
- 3 bedrooms and 1 bathroom; potential for renovations
- Generous dual-aspect sitting/dining room and modern kitchen
- Low-maintenance garden with summer house and patio
- Garage and off-street parking available
- Chain-free and situated near South Downs National Park
Nestled in a desirable close of Regency-style homes, this charming semi-detached residence offers both comfort and potential. Boasting three well-proportioned bedrooms and a family bathroom, the spacious dual-aspect sitting/dining room invites natural light, creating a warm and airy environment. The modern kitchen features sleek units and provides easy access to the low-maintenance rear garden, perfect for outdoor relaxation or entertaining. With no onward chain, this property is an inviting opportunity for families seeking a serene lifestyle or investors looking to enhance rental potential.
Located within a friendly community rich with amenities and renowned schools, including Midhurst Rother College rated 'Outstanding,' this home offers a secure and congenial environment for families. Offering scenic views of the nearby South Downs National Park, this property combines comfort with nature for an idyllic living experience. With partial double glazing and mains gas heating, the home is ready to move into, though future homeowners may consider insulation updates for greater energy efficiency. Don't miss this chance to secure an elegant character home in a thriving, affluent area—properties like this don’t last long!
4 bedroom terraced house for sale in Heathfield Park, Midhurst, West Sussex, GU29 — £525,000 • 4 bed • 3 bath • 1550 ft²
3 bedroom semi-detached house for sale in Heathfield Green, Midhurst, GU29 — £425,000 • 3 bed • 1 bath • 980 ft²
4 bedroom mews property for sale in Heathfield Close, Midhurst, GU29 — £470,000 • 4 bed • 2 bath • 1612 ft²
3 bedroom detached house for sale in Heathfield Park, Midhurst, West Sussex, GU29 — £575,000 • 3 bed • 1 bath • 1180 ft²
4 bedroom end of terrace house for sale in Heathfield Close, Midhurst, West Sussex, GU29 — £475,000 • 4 bed • 2 bath • 1519 ft²
3 bedroom terraced house for sale in Poplar Way, Midhurst, West Sussex, GU29 — £335,000 • 3 bed • 2 bath • 997 ft²


















































































































