HA3 8BY - 3 bedroom semidetached house for sale in Kenton Road, Harro…

View on Property Piper

3 bedroom semi-detached house for sale in Kenton Road, Harrow, HA3

Summary - Kenton Road, HA3 8BY HA3 8BY

3 bed 2 bath Semi-Detached

**Highlights:**
- Spacious semi-detached 1930s Art Deco home
- Large plot with potential for modernisation or extension (STPP)
- Three well-proportioned bedrooms and two bathrooms
- Expansive 120ft garden perfect for family activities
- Off-street parking for multiple vehicles plus integral garage
- Prime location with excellent transport links and reputable schools nearby
- Fast broadband and low crime rate for added comfort

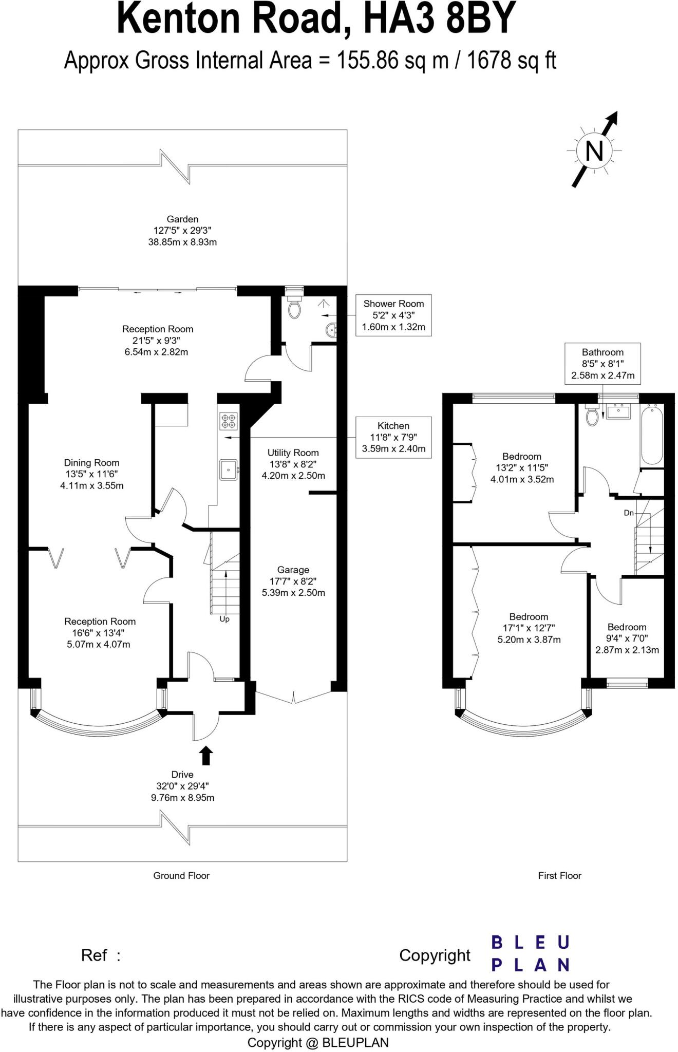
Perfect for families seeking a blend of space and potential, this expansive three-bedroom home on Kenton Road, HA3, spans an impressive 1,678 sq ft. Boasting characteristic Art Deco bay windows and a practical layout, the property features a bright front reception room, separate dining area, and a rear reception room that overlooks an oasis-like garden. The ground floor includes a fitted kitchen, utility room, and a convenient downstairs shower room, making family life effortless.

Venture upstairs to find two generously sized double bedrooms, one with charming bay frontage, alongside a third single room ideal for children or a home office. The substantial rear garden, extending over 120ft, promises the perfect setting for outdoor gatherings and relaxation.

Situated within a vibrant multicultural area, this freehold property is underpinned by excellent transport links and boasts a low crime rate, making it a secure choice. With reputable schools, including St Gregory's Catholic Science College, and a variety of local amenities just a stone's throw away, this home is an exceptional opportunity for those looking to personalize their dream family haven within a thriving community. Act quickly—properties with this much potential in such a desirable location don’t last long!

Property Details

Image Descriptions

Floorplan Description

Rooms

Textual Property Features

Detected Visual Features

Nearby Schools

Nearest Bars And Restaurants

,,,,}

Nearest General Shops

,,}

Nearest Grocery shops

,,}

Nearest Supermarkets

,,}

Nearest Religious buildings

,,}

Nearest Medical buildings

,,,}

Nearest Airports

,}

Nearest Leisure Facilities

,,,,}

Nearest Tourist attractions

,,}

Nearest Train stations

,,,,}

Nearest Bus stations and stops

,,,,}

Nearest Hotels

,,}

Tags

Local Market Stats

AirBnB Data

Similar Properties

Meta

High Res Images

Compatible Images

Low res Images

Thumbnails

Raw Images

High Res Floorplan Images

Compatible Floorplan Images

Low res Floorplan Images

FloorplanImages Thumbnail

Raw Floorplan Images