Single-floor home with garage, garden and short strolls to the seafront.
Chain free; vacant possession possible
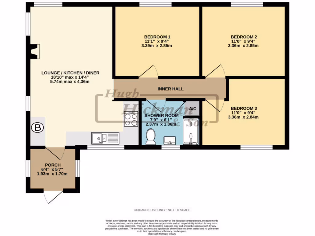
A compact three-bedroom, single-storey home set a short walk from the seafront and local shops. The open-plan lounge/kitchen/diner and south-facing windows create a bright main living space; a fireplace with a log burner gives immediate cosy appeal. The property is offered chain free and includes a detached garage, off-road parking and an easy-to-manage rear garden with a summer house and paved patio.
Internally the bungalow is well laid out for level living with three bedrooms and a fully tiled shower room. Practical features include UPVC double glazing and gas central heating. The loft is accessible via a pull-down ladder and provides extra storage potential.
At about 662 sq ft the house is relatively small and reflects mid-20th-century styling; some buyers may wish to modernise kitchen, bathroom or cosmetic finishes to suit contemporary tastes. The plot is a genuine strength, offering scope to improve the footprint or garden entertaining areas subject to any necessary consents.
This home will suit downsizers, coastal lifestyle seekers, or buyers looking for a manageable investment close to amenities. Flood risk is low, broadband speeds are fast, and the local area is characterised by older workers and retirees, contributing to a generally peaceful neighbourhood feel.
3 bedroom detached bungalow for sale in Eastoke Avenue, Hayling Island, PO11 — £400,000 • 3 bed • 2 bath • 771 ft²
3 bedroom detached bungalow for sale in Wheatlands Crescent, Hayling Island, PO11 — £390,000 • 3 bed • 2 bath • 991 ft²
3 bedroom bungalow for sale in West Haye Road, Hayling Island, Hampshire, PO11 — £375,000 • 3 bed • 1 bath • 1280 ft²
2 bedroom detached bungalow for sale in Winston Close, Hayling Island, PO11 — £450,000 • 2 bed • 1 bath • 833 ft²
3 bedroom bungalow for sale in Sandy Point Road, Hayling Island, Hampshire, PO11 — £350,000 • 3 bed • 2 bath • 1043 ft²
3 bedroom detached bungalow for sale in Richmond Drive, Hayling Island, PO11 — £430,000 • 3 bed • 2 bath • 1742 ft²






































































