Spacious extended family home with high-spec kitchen, balcony and ample parking.
Wealth of original period features and high ceilings
Three off-road parking spaces for several vehicles
Large open-plan kitchen/dining with bifold doors to garden
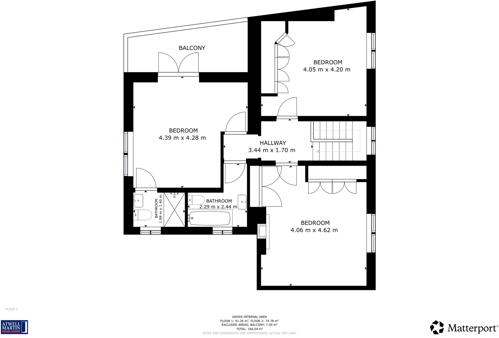
Principal bedroom with private balcony and en-suite with underfloor heating
Private walled garden, well-landscaped and low maintenance
Leasehold (969 years remaining) with small ground rent £52
Very high local crime rates; area classed as very deprived
Chain free sale; moderate council tax banding
This handsome Georgian-style detached home blends original period detail with high-spec contemporary living, arranged over generous living space ideal for family life. The entrance hall, decorative mouldings and large windows set a refined tone that continues through the lounge, formal dining room and generous kitchen/dining area.
The kitchen is a standout: granite surfaces, integrated Neff appliances, bifold doors to the private walled garden and a practical utility room. The principal suite benefits from a private balcony and a luxury en-suite with underfloor heating, while two further double bedrooms and a family bathroom provide comfortable accommodation for children or guests.
Outside offers a private walled garden and ample off-street parking for several vehicles. Practical details include a long lease (969 years) with a small ground rent, moderate council tax banding and no flood risk. The property is offered chain free for a straightforward purchase.
Be candid about location: this property sits in a very deprived area with very high local crime rates. Buyers should weigh the strong house specification, parking and layout against the wider area challenges and decide if the house’s quality and long lease match their priorities.
3 bedroom maisonette for sale in Craigie Drive, Plymouth, PL1 — £350,000 • 3 bed • 2 bath • 1411 ft²
4 bedroom end of terrace house for sale in Mizzen Road, Plymouth, Devon, PL1 — £365,000 • 4 bed • 2 bath • 1421 ft²
4 bedroom terraced house for sale in Durnford Street, Plymouth, PL1 — £750,000 • 4 bed • 2 bath • 2670 ft²
3 bedroom end of terrace house for sale in Warleigh Avenue, PLYMOUTH, PL2 — £220,000 • 3 bed • 1 bath • 1046 ft²
4 bedroom semi-detached house for sale in Hartley Avenue, Plymouth, Devon, PL3 — £440,000 • 4 bed • 1 bath • 1553 ft²
4 bedroom detached house for sale in Bowers Road, Milehouse, Plymouth, PL2 — £480,000 • 4 bed • 2 bath • 1597 ft²


















































































