Quiet Battersea location, minutes from parks and transport links.
Two double bedrooms, fits small family or sharers
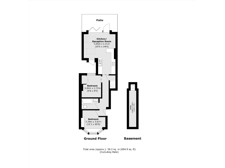
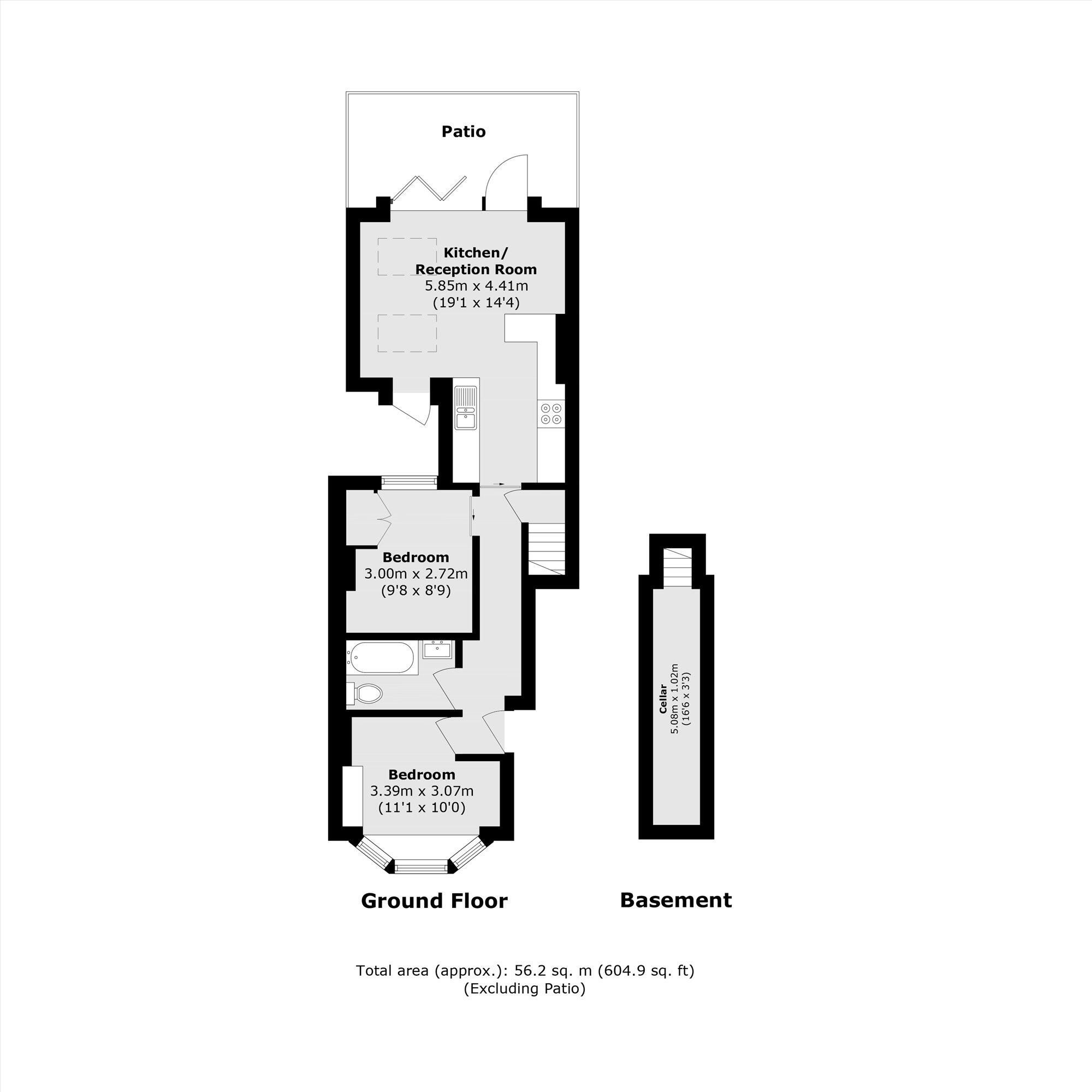
Open-plan reception/kitchen with skylights and bi-fold doors
Private paved garden, small but private outdoor space
Owns full freehold; offered chain free
Approx 604 sq ft — compact living space
Lower-ground cellar/store; limited headroom likely
Solid brick walls, assumed no cavity insulation
Local crime rate above average; consider security measures
This compact two-double-bedroom Victorian conversion offers a straightforward entry into SW11 living. An open-plan reception/kitchen leads directly to a small private paved garden, creating an indoor-outdoor flow that suits casual entertaining and city living. Owning the full freehold and being chain free are strong ownership benefits, plus a long lease figure is provided for clarity.
The flat is modest in size at about 604 sq ft and sits over a lower-ground store, so it will particularly suit first-time buyers or buy-to-let investors seeking a well-located, manageable home with scope to add value. Interiors are neutrally presented with wooden flooring, skylights and bi-fold doors, but the property reflects its period construction: solid brick walls with assumed lack of insulation and double glazing fitted before 2002.
Location is a genuine asset: a sought-after Battersea street near the River Thames, short walks to Battersea Park, the Kings Road and Clapham Junction station. Practical points to note include a moderate council tax band, very low flood risk, excellent mobile signal and fast broadband, balanced against an above-average local crime rate. Modest cosmetic or efficiency upgrades would increase comfort and long-term value.
2 bedroom flat for sale in Queenstown Road, London, SW8 — £550,000 • 2 bed • 2 bath • 681 ft²
2 bedroom flat for sale in Strathblaine Road, Clapham Junction, SW11 — £750,000 • 2 bed • 1 bath • 788 ft²
2 bedroom flat for sale in Strathblaine Road, Clapham Junction, SW11 — £750,000 • 2 bed • 2 bath • 948 ft²
2 bedroom apartment for sale in Lavender Sweep, SW11 — £675,000 • 2 bed • 1 bath • 640 ft²
2 bedroom flat for sale in Queenstown Road, Battersea, SW8 — £595,000 • 2 bed • 1 bath • 744 ft²
2 bedroom apartment for sale in Ilminster Gardens, SW11 — £925,000 • 2 bed • 1 bath • 920 ft²


































