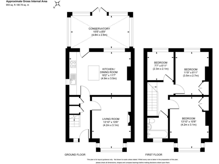
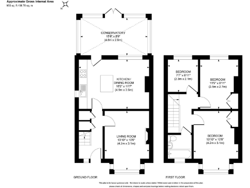
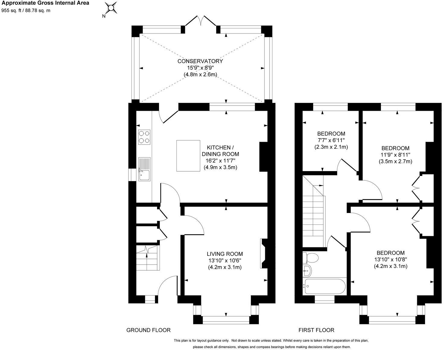
**Standout Features:**
- 3-bedroom semi-detached home from the 1930s
- Large south-facing rear garden (80’ x 23’)
- Block paved driveway with parking for 3 cars
- Conservatory offering additional living space
- Bay fronted living room with Victorian open fireplace
- Potential for extension due to decent sized plot
- Located near shops, schools, and Burgess Hill mainline station
**Overview:**
Step into this charming 3-bedroom semi-detached home, nestled towards the end of a quiet road, perfect for families and first-time buyers alike. Enjoy the spacious bay-fronted living room with a delightful Victorian open fireplace, ideal for cozy evenings. The contemporary kitchen/dining area, complete with a central island and integrated appliances, flows seamlessly into a light-filled conservatory, creating a wonderful space for both relaxation and entertaining.
The large south-facing garden is a true highlight—an 80-foot oasis featuring landscaped areas, a patio for outdoor dining, and mature fruit trees. This property not only boasts current comfort with gas central heating and double glazing but also offers tremendous potential for personalization, as the substantial rear garden allows for future extensions.
Conveniently situated just 0.7 miles from the town centre and mainline station, local amenities, primary schools, and parks are easily accessible, making this home a family-friendly haven in a thriving suburb. The low crime rate and affluent setting enhance the appeal, ensuring a secure and pleasant living environment. With a reasonable asking price of £470,000, homes of this character and potential don’t last long in the market—don’t miss your chance to view!
3 bedroom semi-detached house for sale in Holmesdale Road, Burgess Hill, West Sussex, RH15 — £400,000 • 3 bed • 1 bath • 882 ft²
3 bedroom semi-detached house for sale in Orchard Road, Burgess Hill, RH15 — £395,000 • 3 bed • 1 bath • 885 ft²
3 bedroom detached house for sale in Inholmes Close, Burgess Hill, RH15 — £500,000 • 3 bed • 2 bath • 1338 ft²
3 bedroom semi-detached house for sale in Nye Road, Burgess Hill, RH15 — £440,000 • 3 bed • 1 bath • 1177 ft²
4 bedroom semi-detached house for sale in Valebridge Drive, Burgess Hill, RH15 — £525,000 • 4 bed • 2 bath • 1393 ft²
3 bedroom semi-detached house for sale in Southway, Burgess Hill, West Sussex, RH15 — £425,000 • 3 bed • 2 bath • 909 ft²










































































