G41 5EB - 2 bedroom flat for sale in Wedsley Court, Albert Drive, Pol…

View on Property Piper

2 bedroom flat for sale in Wedsley Court, Albert Drive, Pollokshields, G41

Summary - Flat 42 318 Albert Drive Wedsley Court Glasgow G41 5EB G41 5EB

2 bed 1 bath Flat

Two-bedroom top-floor home with private garage and balcony near local amenities.
Top-floor flat with lift access and private balcony
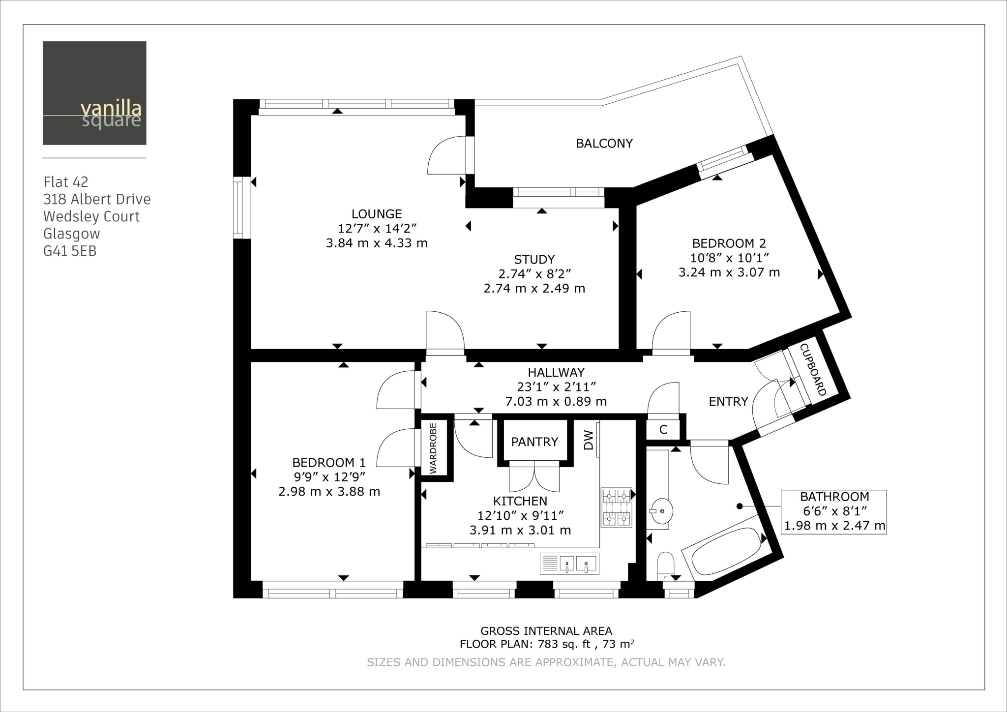
Set on the top floor of Wedsley Court with lift access, this two-bedroom flat offers a bright, well-proportioned home with a private balcony and a rare private garage. The living room floods with natural light through large windows; the fitted kitchen, family bathroom and generous bedrooms are presented in good order and ready to move into.

Practical benefits include double glazing, electric heating and beautifully kept communal gardens. Broadband speeds are fast and mobile signal is excellent, making the flat suited to remote working and everyday connectivity. The property is freehold and sits on Albert Drive, close to local shops, cafés and frequent bus links into Glasgow city centre.

Important considerations: the property has an EER band E and electric heating, which may mean higher running costs compared with gas-heated homes. The wider area is classified as very deprived, which could affect long-term resale or investment prospects. Council tax is above average.

This flat will appeal to first-time buyers or professionals seeking a well-located, low-maintenance home with off-street parking and immediate usability. The private garage adds secure parking or storage potential that is increasingly rare for flats in the area.

Property Details

Image Descriptions

Floorplan Description

Rooms

Textual Property Features

Target Audience

AI Tags

Detected Visual Features

Nearest Bars And Restaurants

,,,,}

Nearest General Shops

,,}

Nearest Grocery shops

,,}

Nearest Supermarkets

,,}

Nearest Religious buildings

,,}

Nearest Medical buildings

,,,}

Nearest Airports

,}

Nearest Leisure Facilities

,,,,}

Nearest Tourist attractions

,,}

Nearest Train stations

,,,,}

Nearest Bus stations and stops

,,,,}

Nearest Hotels

,,}

Tags

Local Market Stats

AirBnB Data

Similar Properties

Meta

High Res Images

Compatible Images

Low res Images

Thumbnails

Raw Images

High Res Floorplan Images

Compatible Floorplan Images

Low res Floorplan Images

FloorplanImages Thumbnail

Raw Floorplan Images