Single-storey, low-maintenance bungalow on a generous plot — ideal for downsizers..
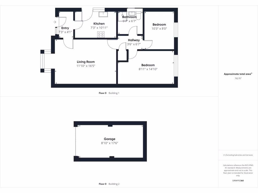
Semi-detached two-bedroom bungalow, 762 sq ft
Generous plot with lawned gardens, low-maintenance
Long driveway plus single garage for off-street parking
Mains gas boiler and radiators, cavity wall insulation assumed
Single contemporary bathroom; only one washroom in home
Double glazing present; installation date unknown
Slow broadband speeds in the area despite excellent mobile signal
Built 1983–1990; cosmetic updating likely rather than structural works
Set on a decent plot in a quiet Brinkburn Close cul-de-sac, this two-bedroom semi-detached bungalow offers single-storey living suited to downsizers or those seeking easy-access accommodation. The 762 sq ft layout is traditional and practical, with a bay-front lounge, separate modern kitchen and a single contemporary bathroom.
Gardens wrap the property and are low-maintenance lawned spaces ideal for outdoor seating or light gardening. The long driveway and attached single garage provide secure off-street parking and extra storage. Built in the 1980s, the home benefits from mains gas central heating and cavity wall insulation (assumed), with double glazing although the installation date is unknown.
Location strengths include very low local crime, excellent mobile signal, affordable council tax and proximity to several well-rated primary and secondary schools. The surrounding area is an established, generally affluent suburb popular with older workers and retirees.
Notable practical points: broadband speeds are reported as slow, rooms are small-to-medium in scale, and there is only one bathroom. The property presents straightforward scope for cosmetic updating rather than major structural work, making it a sensible purchase for someone wanting comfortable, single-level living with modest improvement potential.
2 bedroom bungalow for sale in Shawbrow View, Bishop Auckland, Co Durham, DL14 — £200,000 • 2 bed • 1 bath • 1162 ft²
2 bedroom detached bungalow for sale in Brinkburn Close, Bishop Auckland, DL14 — £210,000 • 2 bed • 1 bath • 765 ft²
3 bedroom detached bungalow for sale in St. Oswalds Close, Bishop Auckland, DL14 — £210,000 • 3 bed • 1 bath • 862 ft²
2 bedroom bungalow for sale in Salisbury Place, Bishop Auckland, Durham, DL14 — £230,000 • 2 bed • 1 bath • 1048 ft²
3 bedroom bungalow for sale in Brooklands, Bishop Auckland, County Durham, DL14 — £250,000 • 3 bed • 2 bath • 1397 ft²
2 bedroom semi-detached bungalow for sale in Dudley Grove, Bishop Auckland, DL14 — £165,000 • 2 bed • 1 bath • 754 ft²










































































