Set on a generous private plot near Cannock Chase and excellent schools.
Six bedrooms, including two en-suites
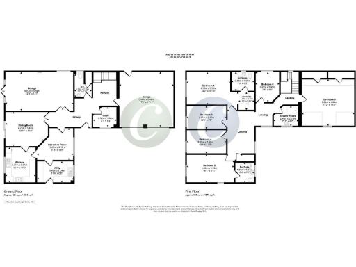
Set in sought-after Etching Hill, this six-bedroom detached home delivers generous family space across multiple reception rooms and well-proportioned bedrooms. Two en-suite bathrooms plus a separate shower room keep morning routines flowing, while a study and utility room add practical flexibility for home working and family life.
Externally the plot is a standout: a block-paved private driveway, double garage and a secluded, landscaped rear garden provide parking, storage and private outdoor space. The property is freehold, with modern heating (boiler and underfloor heating) and modern double-glazed brick construction that presents a solid, low-risk investment in a very low-crime, affluent area.
Note the property is multi-storey — bedroom six is compact compared with principal rooms, and the layout may be less suitable for those with limited mobility. Internal viewing is essential to appreciate the scale and room proportions. The sellers are motivated, so there may be potential to agree terms for a buyer prepared to act quickly.
5 bedroom detached house for sale in Willows Croft, Hednesford, Cannock, WS12 — £525,000 • 5 bed • 4 bath • 1446 ft²
6 bedroom detached house for sale in Hednesford Road, Rugeley, WS15 — £650,000 • 6 bed • 2 bath • 2053 ft²
5 bedroom detached house for sale in Stonehouse Road, Etching Hill, WS15 — £950,000 • 5 bed • 2 bath • 1229 ft²
4 bedroom detached house for sale in East Butts Road, Etching Hill, WS15 — £625,000 • 4 bed • 2 bath • 1887 ft²
6 bedroom detached house for sale in Millside, Slitting Mill, WS15 — £725,000 • 6 bed • 3 bath • 2430 ft²
5 bedroom detached house for sale in Eaton Croft, Rugeley, WS15 — £525,000 • 5 bed • 1 bath • 1637 ft²






















































































































































































































