Single-level home with garage, driveway and sunny rear garden near good local schools.
Chain free — ready for a swift sale or purchase
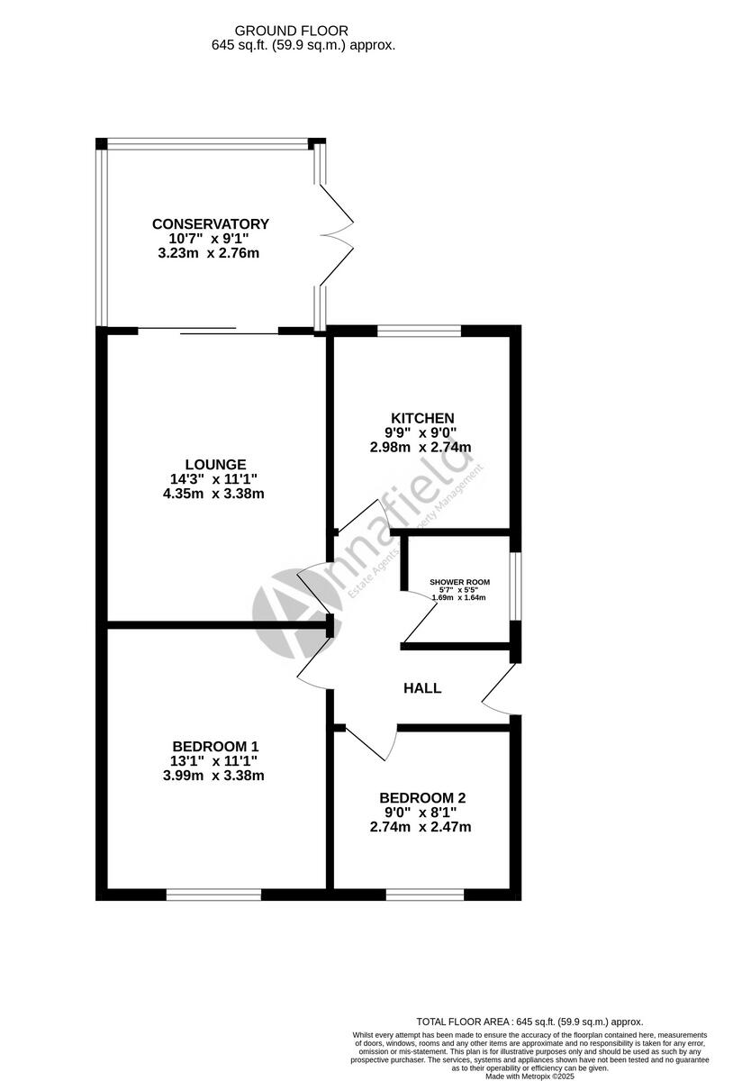
This comfortable semi-detached, single-level home sits at the end of a quiet cul-de-sac in Little Paxton, offering easy, practical living for downsizers or those seeking one-floor accommodation. The layout includes two double bedrooms, a generous lounge and a bright conservatory that opens onto a west-facing rear garden—ideal for afternoon and evening sun.
Practical benefits include a garage with a newly installed electric door, carport driveway parking, fast broadband and excellent mobile signal. The property is offered chain free, making it straightforward for a buyer wanting a quick move. Local amenities, good primary and secondary schools and low-crime surroundings add to the appeal.
The bungalow was built in the late 1960s–1970s and while well presented, it reflects its era. The cavity walls are as-built with no confirmed insulation, windows are double glazed (installation date unknown) and the single shower room means there is only one bathroom. Buyers should budget for possible energy efficiency improvements and modernization to suit contemporary tastes.
Overall, this home suits someone prioritising single-floor convenience, outdoor space and parking, with scope to personalise and improve thermal performance and internal finishes over time.
2 bedroom bungalow for sale in Beeson Close, Little Paxton, St Neots, PE19 — £325,000 • 2 bed • 1 bath • 632 ft²
2 bedroom semi-detached bungalow for sale in Apple Close, Offord D'arcy, Cambridgeshire., PE19 — £285,000 • 2 bed • 1 bath • 848 ft²
2 bedroom bungalow for sale in Chestnut Close, St. Ives, Cambridgeshire, PE27 — £375,000 • 2 bed • 1 bath • 1368 ft²
4 bedroom detached house for sale in Willow Close, Little Paxton, St. Neots, Cambridgeshire, PE19 — £550,000 • 4 bed • 2 bath • 1157 ft²
2 bedroom detached bungalow for sale in Rookery Place, Fenstanton, Cambridgeshire, PE28 — £280,000 • 2 bed • 1 bath • 759 ft²
3 bedroom detached bungalow for sale in Hodsons Drive, Huntingdon, PE29 — £385,000 • 3 bed • 2 bath • 915 ft²














































