Spacious character home with large garden and useful outbuildings for family living.
Detached former chapel with high ceilings and exposed beams
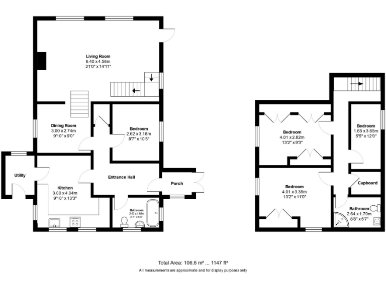
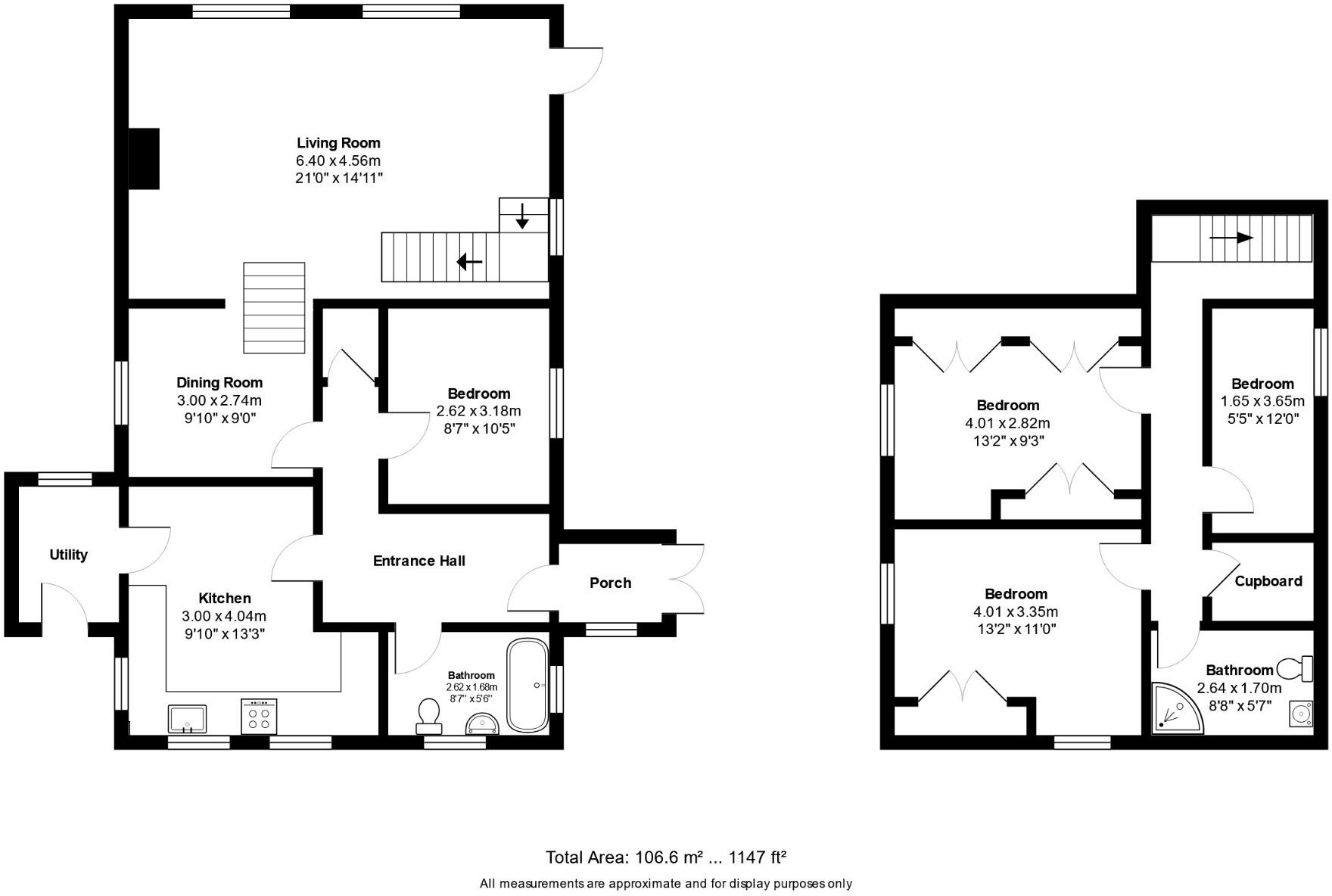
Set in a quiet village close to local amenities and a golf course, this detached former chapel offers roomy, characterful living across two floors. The tall, light-filled lounge with exposed beams and a wood-burning stove creates a striking central living space, while a recently refitted kitchen and utility add practical modern comfort. The layout includes a ground-floor double bedroom and three first-floor bedrooms, making the house flexible for family life or a home office.
Outside, the large private plot delivers strong outdoor appeal: a mature garden with a generous patio, summer house, powered workshop and a double garage with electric door and driveway parking for multiple cars. Solar panels are fitted and owned by the sellers, helping reduce running costs alongside the oil-fired boiler and radiators.
Buyers should note a few material points: the property has solid brick walls assumed to lack cavity insulation, an EPC rating of D, oil central heating (not a community supply), and a medium flood risk. There is no mobile signal on site and broadband speeds are average. These factors may affect running costs and suitability for some buyers.
This former chapel will suit families wanting distinctive, spacious accommodation in a rural village or buyers looking for a character home with useful outbuildings. A viewing is recommended to appreciate the internal proportions, storage and garden layout in person.
3 bedroom detached house for sale in New Road, Upwell, WISBECH, PE14 — £250,000 • 3 bed • 2 bath • 1496 ft²
4 bedroom detached house for sale in Gedney Drove End, PE12 — £395,000 • 4 bed • 2 bath • 1985 ft²
3 bedroom character property for sale in Bens Lane, Wereham, King's Lynn, PE33 — £400,000 • 3 bed • 2 bath • 1647 ft²
4 bedroom detached house for sale in Back Street, Gayton, PE32 — £500,000 • 4 bed • 1 bath • 3045 ft²
2 bedroom detached house for sale in Hooks Drove, Murrow, PE13 4HH, PE13 — £300,000 • 2 bed • 3 bath • 1281 ft²
4 bedroom detached house for sale in Stocks Close, Great Bircham, King's Lynn, Norfolk, PE31 — £795,000 • 4 bed • 3 bath • 3285 ft²














































































